EasyManua.ls Logo

Electrolux WTCS90ERB - Page 66

Electrolux WTCS90ERB
88 pages
Print Icon
To Next Page IconTo Next Page
To Next Page IconTo Next Page
To Previous Page IconTo Previous Page
To Previous Page IconTo Previous Page
Loading...
Electrolux
EFS - Dishwashing Systems Platform
Electrolux Professional
DOC. NO. 5956.573.05 P. 6 6 / 8 8
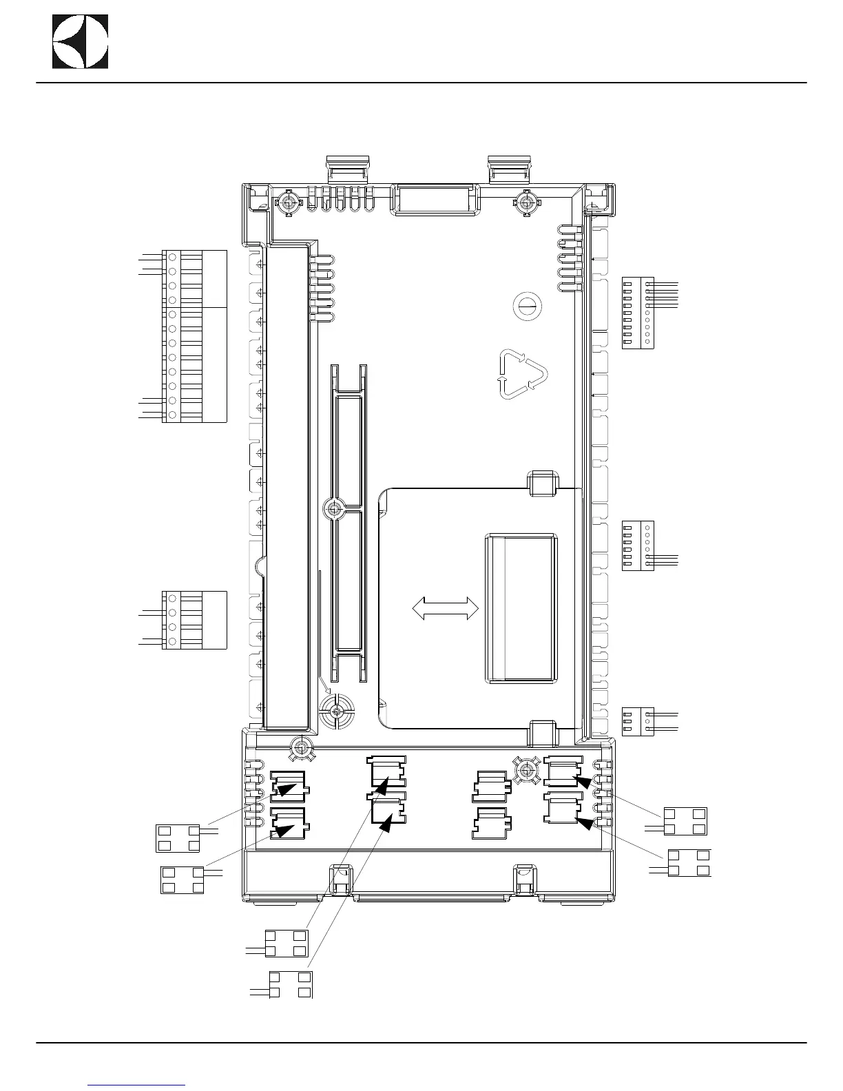
LAYOUT 7 DT / HAB ( SHORT COMPACT )
6
5
4
3
2
1
9
8
7
10
11
12
00
9
1
X1
X2
X3
X4
X5
X6
X7 X8
X9
X10
X11
F1
F2
F3
F4
F5
F6
F7
F8
F9
F10
F11
F12
F13
F14
F15
F16
F17
F18
F19
F20
F21
F22
F23
F24
F25
F26
F27
F28
F29
F30
F31
F32
F33
F34
F35
F36
F37
F38
F39
F40
BLACK
BLACK
RED
RED
WHITE
WHITE

Table of Contents

Related product manuals