EasyManua.ls Logo

Epson TM H6000 - B/W Direct Thermal - Printable Area

Epson TM H6000 - B/W Direct Thermal
122 pages
Print Icon
To Next Page IconTo Next Page
To Next Page IconTo Next Page
To Previous Page IconTo Previous Page
To Previous Page IconTo Previous Page
Loading...
Rev. A General Information 1-9
TM-H6000II Technical Reference Guide
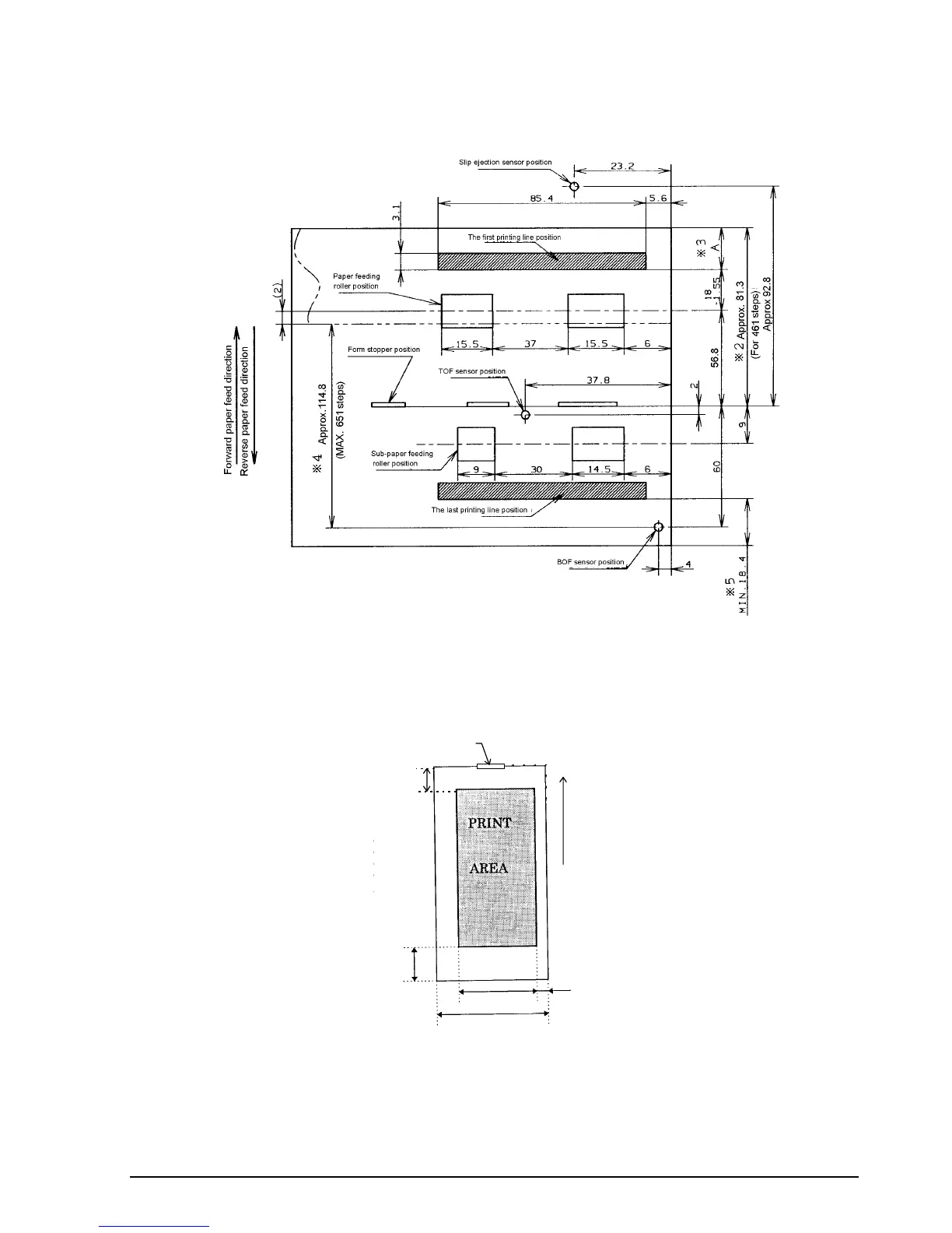
1.5.1.2 Printable Area
Printable area (for slip paper)
*2 The length from the form stopper to the tip of the paper.
*3 The length from the tip of the paper to the first printing line position.
*4 The printable area after the slip BOF sensor detects the end of the paper. (The
bottom margin must be considered for a real printable area.)
*5 Bottom margin (calculated value).
5.6
70 (Min)
85.4 (Max)
18.4
(Min)
5
Form stopper
Paper inserting direction
4.8
86.2 (Max)

Table of Contents

Related product manuals