EasyManua.ls Logo

Escea DF960 - Connecting to Wi-Fi

Escea DF960
58 pages
Print Icon
To Next Page IconTo Next Page
To Next Page IconTo Next Page
To Previous Page IconTo Previous Page
To Previous Page IconTo Previous Page
Loading...
B
ACDEFGSERVICE
13
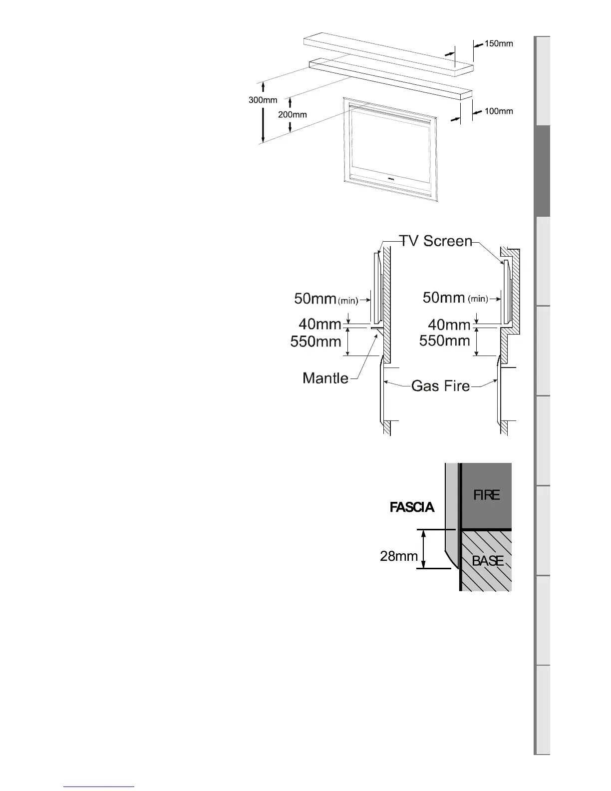
B7 Mantle Clearance
Please refer to the diagram below. Mantles
or protruding ledges mounted above the
heater that are made from combustible
materials, must not extend outside of the
dimensions shown below.
B8 Television Clearances
The following are the recommended
minimum clearances for the location of any
electrical equipment (such as Plasma TV, LCD TV
or home theatre) above an Escea DF-Series gas fire.
Use either a shelf or mantle below your TV screen
or alternatively you can construct a recess to mount
your TV screen into.
Note: The above television clearance recommenda-
tions are to be treated as a suggestion of a suitable
installation only. It is the responsibility of the end
user to check the installation instructions of their
electrical appliances to ensure that the location in
relation to the gas fire is suitable. Escea in no way
guarantees or takes responsibility that the above in-
stallation suggestion will be suitable for all electrical
or home entertainment appliances.
B9 Distance from Fireplace base to Fascia base
The following side-on view shows the measurement from the base of the
fireplace to the base of the fascia:

Table of Contents

Other manuals for Escea DF960

Related product manuals