EasyManua.ls Logo

Excel EX62 - Hopper Bolt Pattern Diagram

Excel EX62
90 pages
Print Icon
To Next Page IconTo Next Page
To Next Page IconTo Next Page
To Previous Page IconTo Previous Page
To Previous Page IconTo Previous Page
Loading...
72
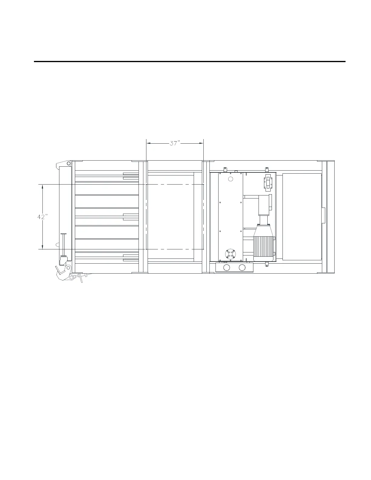
HOPPER BOLT PATTERN DIAGRAM
The following diagram illustrates the location of holes on the baler to which optional hopper devices can be fastened. Holes in optional
equipment must match the dimensions shown. The four holes shown on the baler are threaded for 3/8-16 UNC fasteners.

Related product manuals