EasyManua.ls Logo

Fortis 5000RT-A - 5000 RT Auto Teller System Specifications

Fortis 5000RT-A
33 pages
Print Icon
To Next Page IconTo Next Page
To Next Page IconTo Next Page
To Previous Page IconTo Previous Page
To Previous Page IconTo Previous Page
Loading...
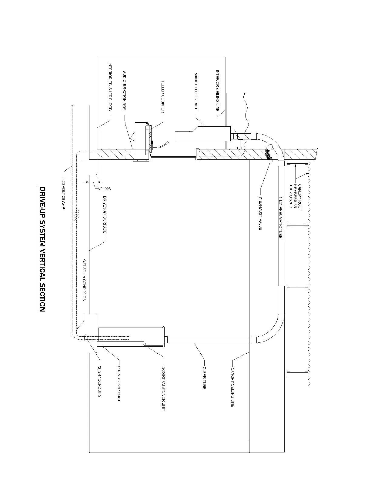
SYSTEM SPECIFICATIONS
5000RT WITH AUTO TELLER
120" REFERENCE
96" TO CEILING
P-13

Related product manuals