EasyManua.ls Logo

Fortis 5000RT-A - 5000 RT Manual Teller System Specifications

Fortis 5000RT-A
33 pages
Print Icon
To Next Page IconTo Next Page
To Next Page IconTo Next Page
To Previous Page IconTo Previous Page
To Previous Page IconTo Previous Page
Loading...
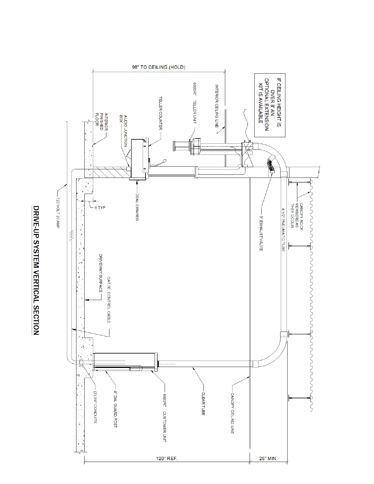
SYSTEM SPECIFICATIONS
5000RT WITH MANUAL TELLER
P-17
5000RT

Related product manuals