EasyManua.ls Logo

Four winns FUNSHIP - CLARION AMPLIFIER - APX480 M CONNECTIONS & SETTINGS

Four winns FUNSHIP
185 pages
Print Icon
To Next Page IconTo Next Page
To Next Page IconTo Next Page
To Previous Page IconTo Previous Page
To Previous Page IconTo Previous Page
Loading...
C
O
.020
.5
1/16
.06
ANG +/-
3 PLCS +/-
2 PLCS +/-
+/- FRACT
231-779-2331
CADILLAC,MI 49601
905 FRISBIE STREET
DO NOT SCALE DRAWING.
11NTS6/11/01JJW
SIZE:
TITLETOLERANCES:
SCALE:
DWG NUMBER:
DATE:
DATE:
DATE:
APPROVED BY:
CHECKED BY:
DRAWN BY: SHEET: OF:
ALL DIMENSIONS ARE IN INCHES UNLESS OTHERWISE NOTED.
DISCLOSURE OF THIS INFORMATION WITHOUT PERMISSION OF FOUR WINNS IS PROHIBITED.
CONFIDENTIAL:
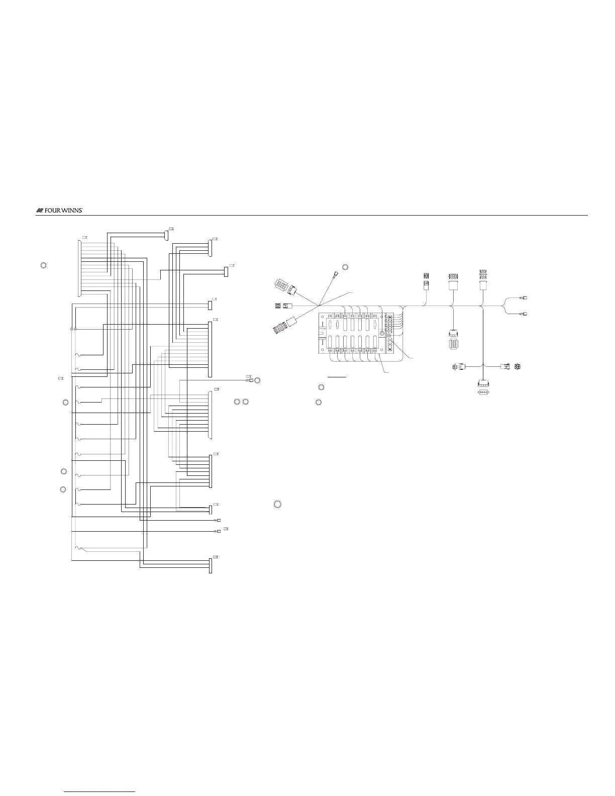
HARNESS ASSEMBLY, HELM SYSTEMS,
194/214/234/264FS
027-2225
NOTES:
1. LENGTHS SHOWN IN INCHES +/- 1.5 INCH.
2. WIRE COLOR PER FOUR WINNS COLOR CODE 125-60000.
3. TERMINATIONS PER FOUR WINNS SPEC. 125-60153
4. WIRE TYPE PER SAE J1128.
5. ALL WIRES 16AWG UNLESS INDICATED.
XX
FOUR WINNS PARTS LIST
ITEM
-
-
-
-
-
-
FB01
F01
F02
F03
F04
F05
F06
F07
F09
F10
F11
F12
J03
J08
J09
J10
J18
LS05
P04
P05
P06
J17
P11
TB01
PART NUMBER
028-0177
028-0191
028-0195
028-0390
028-0454
028-0455
028-0505
028-0507
028-0507
028-0507
028-0510
028-0507
028-0507
028-0509
028-0507
028-0511
028-0509
028-0509
028-0441
028-0443
028-0445
028-0442
028-0441
-
028-0451
028-0448
028-0452
028-0441
028-0447
-
QUANTITY
22
1
2
17
43
2
1
1
1
1
1
1
1
1
1
1
1
1
1
1
1
1
1
REF
1
1
1
1
1
REF
DESCRIPTION
TERM,FASTON,.250,18-14
TERM,RING,#10,16-14
TERM,RING,#10,12-10
PIN,UMNL,18-14
SOCKET,UMNL,18-14
SOCKET,UMNL,12-10
FUSE BLOCK,14 POSITOIN
FUSE,ATC,5A
FUSE,ATC,5A
FUSE,ATC,5A
FUSE,ATC,15A
FUSE,ATC,5A
FUSE,ATC,5A
FUSE,ATC,10A
FUSE,ATC,5A
FUSE,ATC,20A
FUSE,ATC,10A
FUSE,ATC,10A
RECEPT,UMNL,2 CKT
RECEPT,UMNL,9 CKT
RECEPT,UMNL,12 CKT
RECEPT,UMNL,4 CKT
RECEPT,UMNL,2 CKT
HORN,HIDDEN AFI
PLUG,UMNL,12 CKT
PLUG,UMNL,4 CKT
PLUT,UMNL,15 CKT
RECEPT,UMNL,2 CKT
PLUG,UMNL, 2 CKT
DC RET BUSS
FUNCTION
02
09
13
41
42
43
HELM FUSE BLOCK
BLOWER
BILGE
NAV/ANC LTS
RADIO
COCKPIT LTS
HORN
CABIN LTS
WIPER
12V RECEPTACLE/ENG HATCH
FRESH WATER PUMP
DOCKING LTS
COMPASS
FWD SYSTEMS
HELM/AFT SYSTEMS
WIPER
HELM POWER
HORN
RADIO
POWER TRIM
SWITCH/HELM SYSTEMS
NEUTRAL SAFETY
ESS
RETURN BUSS
MANUFACTURER
AMP
AMP
AMP
AMP
AMP
AMP
GENERAL
BUSS
BUSS
BUSS
BUSS
BUSS
BUSS
BUSS
BUSS
BUSS
BUSS
AMP
AMP
AMP
AMP
AMP
AMP
-
AMP
AMP
AMP
AMP
AMP
-
B
B
B
A
A
WIRE FROM F05 TO P06 TO ORN/PUR WAS ORN.
WIRE FROM F12 TO P06 TO ORN WAS ORN/PUR.
17000
8/24/01
JJW
B
TRIM LIMIT SW
NOT USED
NOT USED
15
14
13
LS05
HORN
BLK
WHT/ORN
10A
ORN/BRN
F11
WATER PUMP
ORN/BRN
GRA/BRN
2
1
J18
HELM POWER
2S
GRA/BRN
WATER PUMP
FWD COCKPIT LTS
REVISIONS
REVISION
LEVEL
DATE
EN #
DESCRIPTION
REVISED
BY
- PRODUCTION RELEASE
6/11/01
5A
RED/BLU
ORN/TAN
WIPER PARK
RED/LT BLU
4
3
WIPER RET1
WIPER RUN2
J10
WIPER
4S
BLK
RED/BLU
RED/LT BLU
F09
WIPER
BLK
7
10A
ORN/TAN
5A
GRA/GRN
BLK
J03
COMPASS
2S
2 COMPASS LT
1 COMPASS LT RET
ORN/RED 12AWG
6
BLK
F07
CABIN LIGHTS
10A
BLU/RED
BLK
BLU/RED
BLK
GRA/GRN
BLK/GRN
GRN
BLK/RED
1
2
3
4
5
6
7
8
9
RED
J08
FWD SYSTEMS
9S
FWD PORT SPKR
FWD PORT SPKR RETURN
FWD STBD SPKR
FWD STBD SPKR RETURN
FWD NAV LIGHT
FWD COCKPIT LTS
NAV LIGHT RET
CABIN LIGHT
CABIN LIGHT RET
ORN/RED 12AWG
20A
F10
12V RECEPT/ENG HATCH
BLK
4
RED/PUR 14AWG
2
BLK 12AWG
RETURN
FEED
9
RED/PUR 14AWG
RED/PUR 14AWG
START
YEL/RED
HORN IN
ORN/WHT
WHT/ORN
BLK 12AWG
10
11
12
13
14
15
8
RED/PUR 14AWG
7
ORN
6
5
4
ORN/PUR
3
GRA/GRN
2
ORN/GRA
1BLOWER IN
ORN/YEL 14AWG
P06
SWITCH/HELM SYSTEMS
15P
IGNITION BREAKER
IGNITION IN
HORN
12V RECEPT/ENG HATCH
IGNITION BREAKER IN
DOCKING LTS
WIPER RUN
WIPER IN
COCKPIT LT IN
BOW LT
NAV/ANC LT IN
12V RECEPTACLE RET
J09
HELM/AFT SYSTEMS
15S
1
2
3
4
5
6
7
8
9
10
11
12
BLK/ORN
BLU
ORN
BRN/ORN
WHT/GRN
WHT/BLU
WHT/RED
YEL/RED
RED/PUR 10AWG
BLK 10AWG
CLUSTER RET
HELM RET
AFT STBD SPKR
AFT STBD SPKR RET
AFT PORT SPKR RET
AFT PORT SPKR
TRIM DOWN
TRIM UP
TRIM POWER
START
HELM POWER
BILGE POWER
BLK/BLU
BLK
FUSE SCHEDULE
1. BLOWER 5A
2. BILGE 5A
3. NAV/ANC LTS. 5A
4. RADIO 15A
5. COURTESY LTS. 5A
6. HORN 5A
7. CABIN LTS 10A
9. WIPER 5A
10. 12V RECEPTACLE/ENGINE HATCH 20A
11. FRESH WATER 10A
12. DOCKING LIGHTS 10A
1
2
3
4
5
6
7
8
9
10
11
12
ORN/GRA
BRN/ORN
P04
RADIO
12S
ORN/GRN
PUR/BLK
RED
BLK/RED
ORN
BLK/GRN
BLK/ORN
GRN
STEREO RET
STEREO
STEREO SWITCH
FWD PORT SPKR
FWD PORT SPKR RET
AFT PORT SPKR
AFT PORT SPKR RET
FWD STBD SPKR
FWD STBD SPKR RET
AFT STBD SPKR
AFT STBD SPKR RET
NOT USED
5A
F03
NAV/ANC LTS
5A
F02
BILGE
FB01
FUSE BLOCK
F01
BLOWER
ORN/YEL 14AWG
5A
BLU
BLK/BLU
ORN/PUR
5A
F05
CTSY LTS
BLK
ORN/WHT
F06
HORN
ORN
10A
F12
DOCKING LTS
ORN/GRN
15A
F04
RADIO
TB01
RETURN
BUSS
BLK
BLK
BLK
1
3
5
WHT/PUR
TRIM DOWN
TRIM UP
TRIM POWER
1
2
3
WHT/RED
WHT/BLU
WHT/GRN
P05
POWER TRIM
4P
RED/PUR 14 AWG
RED/PUR 14 AWG
YEL/RED
YEL/RED
P11
EMERGENCY STOP SW
2P
2
1
ESS
ESS
J17
NEUTRAL SAFETY SW
2S
2
1
NS
NS
4
TRIM LIMIT SW
WHT/PUR
A
BW
7/31/02
FUSE F10 TO 20A WAS 10A.
WIRE FROM F10 TO P06 TO 12AWG WAS 14AWG.
18639
LS05
HORN
J18
HELM POWER
2S
6
3
J10
WIPERS
4S
10
3
7
8
J08
FORWARD
SYSTEMS
9S
J03
COMPASS
2S
3
6
6
14
13
12
11
10
9
87
6
5
4
3
2
1
123456
10
P04
RADIO
12S
J09
HELM/AFT SYSTEMS
15S
P06
SWITCH/HELM SYSTEMS
15P
8
10
3
11
12
9
23
J17
NEUTRAL SAFETY
3
3
P05
POWER TRIM
20
2
1
P11
ESS
C
D
C
C
JJW
4/25/03
19691
FUSE F04 TO 15A WAS 10A.
REMOVED WIRE FROM P04-2 TO S07 IGNITION.
ADDED WIRE FROM P04-2 TO P04-3.
42
42
43
42
42
42
42
02
42
02
41
41
D
C
D
JJW
5/2/03
19691
ADDED PUR/BLK WIRE FROM P04-3 TO S07.
PUR/BLK
SO7
IGN ACCESSORY
42
S07
IGN ACC
D
28
BREAKOUT TO LINE UP WITH
END OF FUSE BLOCK
FB01
HELM FUSE BLOCK
TB01
DC RETURNS
C
O
.020
.5
1/16
.06
ANG +/-
3 PLCS +/-
2 PLCS +/-
+/- FRACT
231-779-2331
CADILLAC,MI 49601
905 FRISBIE STREET
DO NOT SCALE DRAWING.
11NTS6/11/01JJW
SIZE:
TITLETOLERANCES:
SCALE:
DWG NUMBER:
DATE:
DATE:
DATE:
APPROVED BY:
CHECKED BY:
DRAWN BY: SHEET: OF:
ALL DIMENSIONS ARE IN INCHES UNLESS OTHERWISE NOTED.
DISCLOSURE OF THIS INFORMATION WITHOUT PERMISSION OF FOUR WINNS IS PROHIBITED.
CONFIDENTIAL:
HARNESS ASSEMBLY, HELM SYSTEMS,
194/214/234/264FS
027-2225
NOTES:
1. LENGTHS SHOWN IN INCHES +/- 1.5 INCH.
2. WIRE COLOR PER FOUR WINNS COLOR CODE 125-60000.
3. TERMINATIONS PER FOUR WINNS SPEC. 125-60153
4. WIRE TYPE PER SAE J1128.
5. ALL WIRES 16AWG UNLESS INDICATED.
XX
FOUR WINNS PARTS LIST
ITEM
-
-
-
-
-
-
FB01
F01
F02
F03
F04
F05
F06
F07
F09
F10
F11
F12
J03
J08
J09
J10
J18
LS05
P04
P05
P06
J17
P11
TB01
PART NUMBER
028-0177
028-0191
028-0195
028-0390
028-0454
028-0455
028-0505
028-0507
028-0507
028-0507
028-0510
028-0507
028-0507
028-0509
028-0507
028-0511
028-0509
028-0509
028-0441
028-0443
028-0445
028-0442
028-0441
-
028-0451
028-0448
028-0452
028-0441
028-0447
-
QUANTITY
22
1
2
17
43
2
1
1
1
1
1
1
1
1
1
1
1
1
1
1
1
1
1
REF
1
1
1
1
1
REF
DESCRIPTION
TERM,FASTON,.250,18-14
TERM,RING,#10,16-14
TERM,RING,#10,12-10
PIN,UMNL,18-14
SOCKET,UMNL,18-14
SOCKET,UMNL,12-10
FUSE BLOCK,14 POSITOIN
FUSE,ATC,5A
FUSE,ATC,5A
FUSE,ATC,5A
FUSE,ATC,15A
FUSE,ATC,5A
FUSE,ATC,5A
FUSE,ATC,10A
FUSE,ATC,5A
FUSE,ATC,20A
FUSE,ATC,10A
FUSE,ATC,10A
RECEPT,UMNL,2 CKT
RECEPT,UMNL,9 CKT
RECEPT,UMNL,12 CKT
RECEPT,UMNL,4 CKT
RECEPT,UMNL,2 CKT
HORN,HIDDEN AFI
PLUG,UMNL,12 CKT
PLUG,UMNL,4 CKT
PLUT,UMNL,15 CKT
RECEPT,UMNL,2 CKT
PLUG,UMNL, 2 CKT
DC RET BUSS
FUNCTION
02
09
13
41
42
43
HELM FUSE BLOCK
BLOWER
BILGE
NAV/ANC LTS
RADIO
COCKPIT LTS
HORN
CABIN LTS
WIPER
12V RECEPTACLE/ENG HATCH
FRESH WATER PUMP
DOCKING LTS
COMPASS
FWD SYSTEMS
HELM/AFT SYSTEMS
WIPER
HELM POWER
HORN
RADIO
POWER TRIM
SWITCH/HELM SYSTEMS
NEUTRAL SAFETY
ESS
RETURN BUSS
MANUFACTURER
AMP
AMP
AMP
AMP
AMP
AMP
GENERAL
BUSS
BUSS
BUSS
BUSS
BUSS
BUSS
BUSS
BUSS
BUSS
BUSS
AMP
AMP
AMP
AMP
AMP
AMP
-
AMP
AMP
AMP
AMP
AMP
-
B
B
B
A
A
WIRE FROM F05 TO P06 TO ORN/PUR WAS ORN.
WIRE FROM F12 TO P06 TO ORN WAS ORN/PUR.
17000
8/24/01
JJW
B
TRIM LIMIT SW
NOT USED
NOT USED
15
14
13
LS05
HORN
BLK
WHT/ORN
10A
ORN/BRN
F11
WATER PUMP
ORN/BRN
GRA/BRN
2
1
J18
HELM POWER
2S
GRA/BRN
WATER PUMP
FWD COCKPIT LTS
REVISIONS
REVISION
LEVEL
DATE
EN #
DESCRIPTION
REVISED
BY
- PRODUCTION RELEASE
6/11/01
5A
RED/BLU
ORN/TAN
WIPER PARK
RED/LT BLU
4
3
WIPER RET1
WIPER RUN2
J10
WIPER
4S
BLK
RED/BLU
RED/LT BLU
F09
WIPER
BLK
7
10A
ORN/TAN
5A
GRA/GRN
BLK
J03
COMPASS
2S
2 COMPASS LT
1 COMPASS LT RET
ORN/RED 12AWG
6
BLK
F07
CABIN LIGHTS
10A
BLU/RED
BLK
BLU/RED
BLK
GRA/GRN
BLK/GRN
GRN
BLK/RED
1
2
3
4
5
6
7
8
9
RED
J08
FWD SYSTEMS
9S
FWD PORT SPKR
FWD PORT SPKR RETURN
FWD STBD SPKR
FWD STBD SPKR RETURN
FWD NAV LIGHT
FWD COCKPIT LTS
NAV LIGHT RET
CABIN LIGHT
CABIN LIGHT RET
ORN/RED 12AWG
20A
F10
12V RECEPT/ENG HATCH
BLK
4
RED/PUR 14AWG
2
BLK 12AWG
RETURN
FEED
9
RED/PUR 14AWG
RED/PUR 14AWG
START
YEL/RED
HORN IN
ORN/WHT
WHT/ORN
BLK 12AWG
10
11
12
13
14
15
8
RED/PUR 14AWG
7
ORN
6
5
4
ORN/PUR
3
GRA/GRN
2
ORN/GRA
1BLOWER IN
ORN/YEL 14AWG
P06
SWITCH/HELM SYSTEMS
15P
IGNITION BREAKER
IGNITION IN
HORN
12V RECEPT/ENG HATCH
IGNITION BREAKER IN
DOCKING LTS
WIPER RUN
WIPER IN
COCKPIT LT IN
BOW LT
NAV/ANC LT IN
12V RECEPTACLE RET
J09
HELM/AFT SYSTEMS
15S
1
2
3
4
5
6
7
8
9
10
11
12
BLK/ORN
BLU
ORN
BRN/ORN
WHT/GRN
WHT/BLU
WHT/RED
YEL/RED
RED/PUR 10AWG
BLK 10AWG
CLUSTER RET
HELM RET
AFT STBD SPKR
AFT STBD SPKR RET
AFT PORT SPKR RET
AFT PORT SPKR
TRIM DOWN
TRIM UP
TRIM POWER
START
HELM POWER
BILGE POWER
BLK/BLU
BLK
FUSE SCHEDULE
1. BLOWER 5A
2. BILGE 5A
3. NAV/ANC LTS. 5A
4. RADIO 15A
5. COURTESY LTS. 5A
6. HORN 5A
7. CABIN LTS 10A
9. WIPER 5A
10. 12V RECEPTACLE/ENGINE HATCH 20A
11. FRESH WATER 10A
12. DOCKING LIGHTS 10A
1
2
3
4
5
6
7
8
9
10
11
12
ORN/GRA
BRN/ORN
P04
RADIO
12S
ORN/GRN
PUR/BLK
RED
BLK/RED
ORN
BLK/GRN
BLK/ORN
GRN
STEREO RET
STEREO
STEREO SWITCH
FWD PORT SPKR
FWD PORT SPKR RET
AFT PORT SPKR
AFT PORT SPKR RET
FWD STBD SPKR
FWD STBD SPKR RET
AFT STBD SPKR
AFT STBD SPKR RET
NOT USED
5A
F03
NAV/ANC LTS
5A
F02
BILGE
FB01
FUSE BLOCK
F01
BLOWER
ORN/YEL 14AWG
5A
BLU
BLK/BLU
ORN/PUR
5A
F05
CTSY LTS
BLK
ORN/WHT
F06
HORN
ORN
10A
F12
DOCKING LTS
ORN/GRN
15A
F04
RADIO
TB01
RETURN
BUSS
BLK
BLK
BLK
1
3
5
WHT/PUR
TRIM DOWN
TRIM UP
TRIM POWER
1
2
3
WHT/RED
WHT/BLU
WHT/GRN
P05
POWER TRIM
4P
RED/PUR 14 AWG
RED/PUR 14 AWG
YEL/RED
YEL/RED
P11
EMERGENCY STOP SW
2P
2
1
ESS
ESS
J17
NEUTRAL SAFETY SW
2S
2
1
NS
NS
4
TRIM LIMIT SW
WHT/PUR
A
BW
7/31/02
FUSE F10 TO 20A WAS 10A.
WIRE FROM F10 TO P06 TO 12AWG WAS 14AWG.
18639
LS05
HORN
J18
HELM POWER
2S
6
3
J10
WIPERS
4S
10
3
7
8
J08
FORWARD
SYSTEMS
9S
J03
COMPASS
2S
3
6
6
14
13
12
11
10
9
87
6
5
4
3
2
1
123456
10
P04
RADIO
12S
J09
HELM/AFT SYSTEMS
15S
P06
SWITCH/HELM SYSTEMS
15P
8
10
3
11
12
9
23
J17
NEUTRAL SAFETY
3
3
P05
POWER TRIM
20
2
1
P11
ESS
C
D
C
C
JJW
4/25/03
19691
FUSE F04 TO 15A WAS 10A.
REMOVED WIRE FROM P04-2 TO S07 IGNITION.
ADDED WIRE FROM P04-2 TO P04-3.
42
42
43
42
42
42
42
02
42
02
41
41
D
C
D
JJW
5/2/03
19691
ADDED PUR/BLK WIRE FROM P04-3 TO S07.
PUR/BLK
SO7
IGN ACCESSORY
42
S07
IGN ACC
D
28
BREAKOUT TO LINE UP WITH
END OF FUSE BLOCK
FB01
HELM FUSE BLOCK
TB01
DC RETURNS
224/244/274 FUNSHIP
HELM SYSTEMS
HARNESS ASSEMBLY
Electrical Schematics
Owner’s Manual Page 168

Table of Contents

Related product manuals