EasyManua.ls Logo

FRANKLINWH APower - Agate

FRANKLINWH APower
81 pages
Print Icon
To Next Page IconTo Next Page
To Next Page IconTo Next Page
To Previous Page IconTo Previous Page
To Previous Page IconTo Previous Page
Loading...
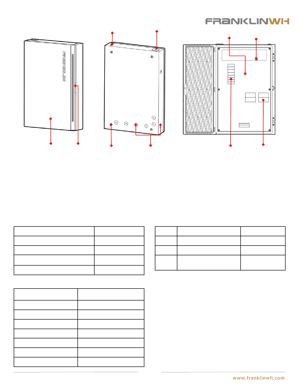
aGate
Purposes:
External panel: The external decoration and protection panel of aGate.
Internal panel: The internal protection panel of aGate.
Lock hole: The whole where a lock may be used.
¼” mounting hole: aGate mounting holes of aGate. Sized for ¼” or M4
screws.
Reset button: The button to reset aGate EMS module.
1/4” mounting
hole
Rated Voltage
120/240VAC Split
Rated input
160A
Rated Frequency
60Hz
Protection Device Max.
200A
Short
-Circuit Breaking Capacity
10kA
Size
550 mm×800 mm×160 mm
(21.7in×31.5in×6.3in)
Operation Temperature Range
20℃ to 50℃(-4℉ to 122℉)
Enclosure Type
Ingress Protection
Protective Class
Environment
Max.Elevation
Weight
Mechanical parameters
Shipping List
No. Item Quantity
1 ¼” water-tight washer 4 PCS
2 Switch tag 1 Set
3
Main switch mounting screw
M4×10
2 PCS
Electrical parameters description (see Appendix 1 for details)
Lock
hole
External
panel
7/8” plug
2-1/2” plug
Reset button
Internal panel
Breaker knockout
hole
Breaker knockout
hole
1-23/64” knockout
hole
Breaker knockout hole: A breaker may be mounted and operated at the hole
after the steel knocked out is removed.
Breaker knockout hole: A breaker may be mounted and operated at the hole after
the steel knocked out is removed.
1-23/64” knockout hole: A 1” electrical conduit may be passed through the
knockout once its removed.
7/8” plug: A ½” electric conduit may be passed through once the knockout is
removed.
2-1/2” plug: A 2” electric conduit may be passed through once the knockout is
removed.
10

Related product manuals