EasyManua.ls Logo

Frecon FR200H - Main Circuit Terminal Functions; Control Circuit Terminals

Frecon FR200H
32 pages
Print Icon
To Next Page IconTo Next Page
To Next Page IconTo Next Page
To Previous Page IconTo Previous Page
To Previous Page IconTo Previous Page
Loading...
FR200H Special Purpose Inverters for Multi-pumps Constant Pressure Water Supply
- 6 -
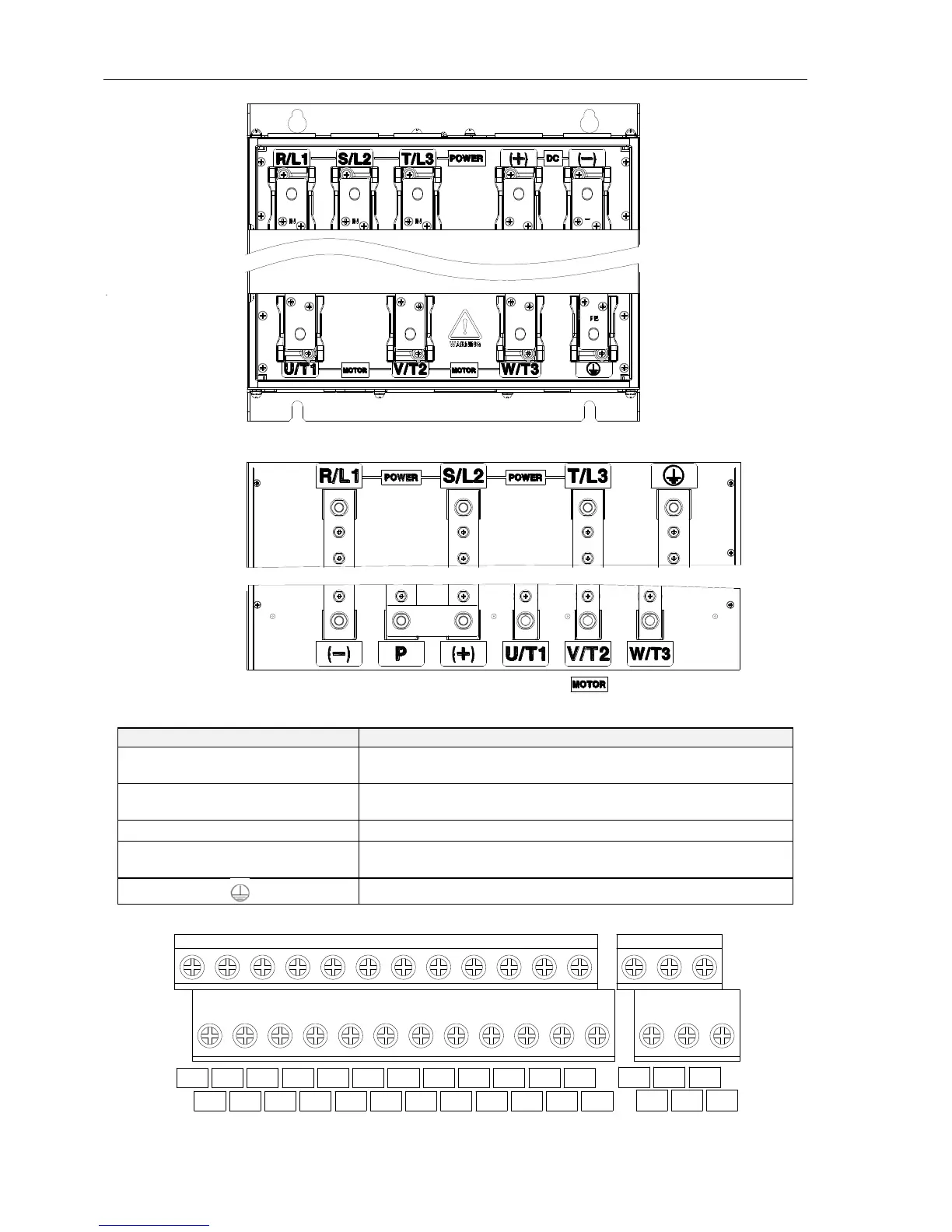
e: 110315kW Main Circuit TerminalsSchematic
Fig.1-8 110315kW Main Circuit TerminalsSchematic
f:355-400kW Main Circuit Terminals
Fig.1-9 355400kW Main Circuit TerminalsSchematic
Table 1-2 main circuit terminal functions
Terminal marks
Functions
R/L1S/L2T/L3
AC power input terminals for connecting to 3-phase AC380V
power supply.
U/T1V/T2W/T3
AC output terminals of inverter for connecting to 3-phase
induction motor.
(+)(-)
Positive and negative terminals of internal DC bus.
B
Connecting terminals of braking resistor. One end connected
to + and the other to B.
Grounding terminal
2.3.2 Control circuit terminals
Fig. 1-10 control circuit terminalsschematic
DI1
+24V
DI2
PLC
DI3
COM
DI4
DI5
COM
DI6
Y1
Y2
+10V
R1A R1B
R1C
R2A R2B
R2C
AO1
AI1
GND
AI2
485+
AI3
485-
PE
DI7/HI
AO2
GND

Table of Contents

Related product manuals