EasyManua.ls Logo

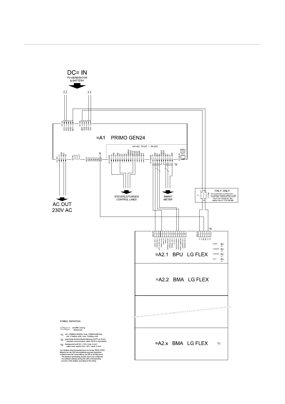
Fronius Primo GEN24 Series - Fronius Primo GEN24 and LG FLEX; Circuit Diagram

Fronius Primo GEN24 Series
232 pages
To Next Page IconTo Next Page
To Next Page IconTo Next Page
To Previous Page IconTo Previous Page
To Previous Page IconTo Previous Page
Loading...
Fronius Primo GEN24 and LG FLEX
Circuit Diagram
212

Table of Contents

Other manuals for Fronius Primo GEN24 Series

Related product manuals