EasyManua.ls Logo

GE af-600 fp - Page 13

GE af-600 fp
129 pages
Print Icon
To Next Page IconTo Next Page
To Next Page IconTo Next Page
To Previous Page IconTo Previous Page
To Previous Page IconTo Previous Page
Loading...
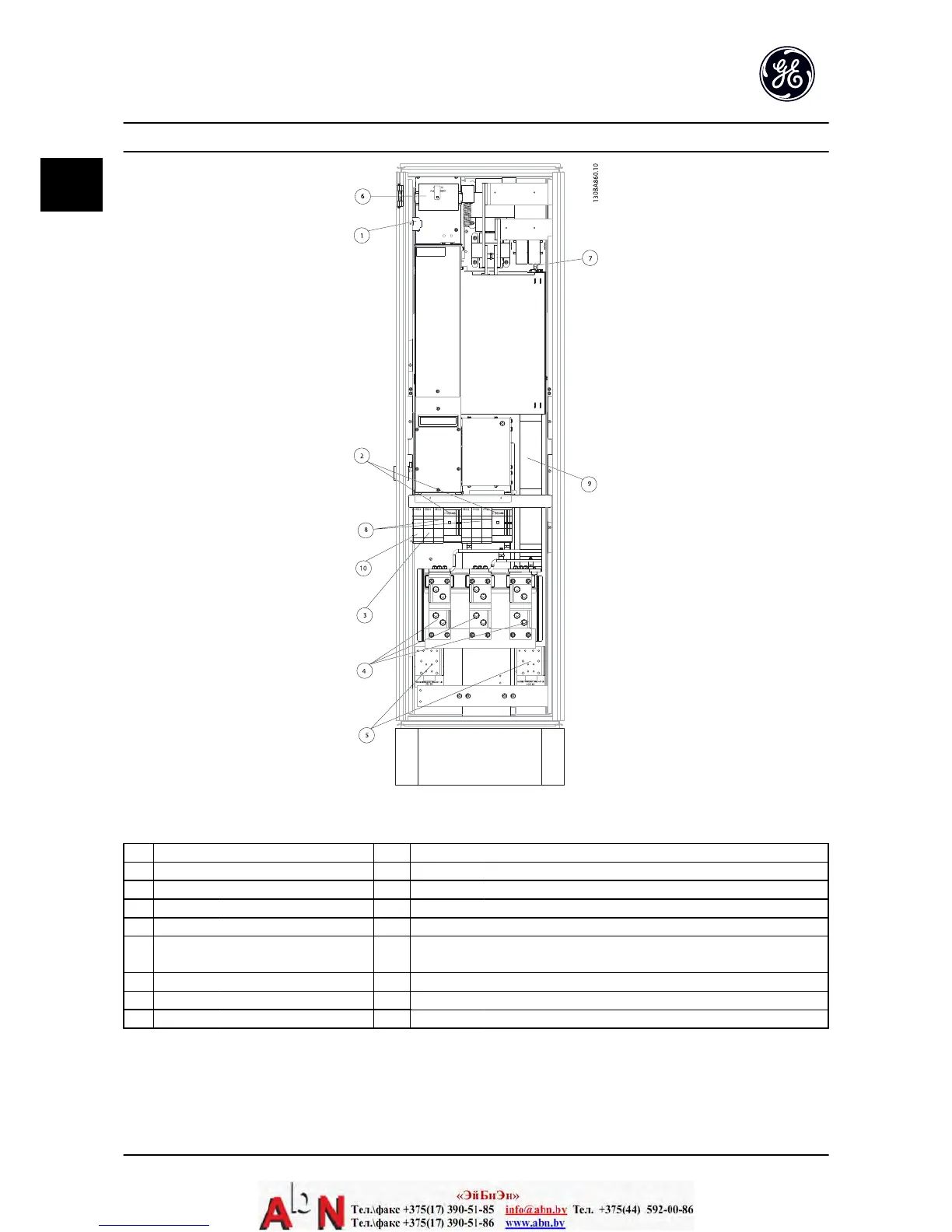
Figure 1.6 Rectifier Cabinet, unit sizes 61, 62, 63 and 64
1) 24 V DC, 5 A 5) Load sharing
T1 Output Taps -DC +DC
Temp Switch 88 89
106 104 105 6) Control Transformer Fuses (2 or 4 pieces). See 12.3 Fuse Tables for part numbers
2) Manual Motor Starters 7) SMPS Fuse. See 12.3 Fuse Tables for part numbers
3) 30 A Fuse Protected Power Terminals 8) Manual Motor Controller fuses (3 or 6 pieces). See 12.3 Fuse Tables for part
numbers
4) Line 9) Line Fuses, unit sizes 61 and 62 (3 pieces). See 12.3 Fuse Tables for part numbers
R S T 10) 30 Amp Fuse Protected Power fuses
L1 L2 L3
Table 1.5
Introduction AF-600 FP Design and Installation Guide
1-6 DET-768A
1
1

Table of Contents

Other manuals for GE af-600 fp

Related product manuals