EasyManua.ls Logo

GE af-600 fp - Before Commencing Repair Work; Installation Considerations

GE af-600 fp
129 pages
Print Icon
To Next Page IconTo Next Page
To Next Page IconTo Next Page
To Previous Page IconTo Previous Page
To Previous Page IconTo Previous Page
Loading...
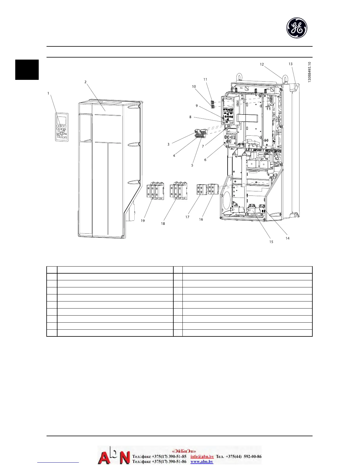
Figure 1.2 Exploded View Unit Sizes 15, 21, 22, 31, and 32
1 Keypad 11 Relay 2 (04, 05, 06)
2Cover 12Lifting ring
3 RS-485 serial bus connector 13 Mounting slot
4 Digital I/O and 24 V power supply 14 Grounding clamp (PE)
5 Analog I/O connector 15 Cable strain relief / PE ground
6 Cable strain relief/PE ground 16 Brake terminal (-81, +82)
7 USB connector 17 Load sharing terminal (DC bus) (-88, +89)
8 Serial bus terminal switch 18 Motor output terminals 96 (U), 97 (V), 98 (W)
9 Analog switches (A53), (A54) 19 Line power input terminals 91 (L1), 92 (L2), 93 (L3)
10 Relay 1 (01, 02, 03)
Table 1.2
Introduction AF-600 FP Design and Installation Guide
1-2 DET-768A
1
1

Table of Contents

Other manuals for GE af-600 fp

Related product manuals