EasyManua.ls Logo

GE Multilin g60 - Page 69

GE Multilin g60
722 pages
Print Icon
To Next Page IconTo Next Page
To Next Page IconTo Next Page
To Previous Page IconTo Previous Page
To Previous Page IconTo Previous Page
Loading...
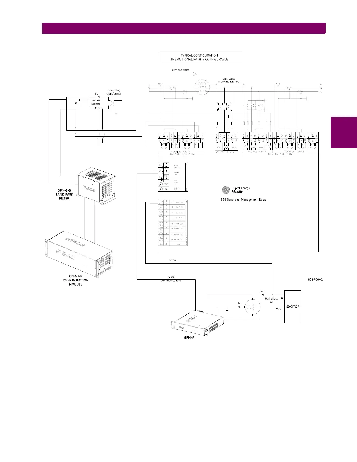
GE Multilin G60 Generator Protection System 3-11
3 HARDWARE 3.2 WIRING
3
Figure 3–13: TYPICAL WIRING WITH GPM-F AND GPM-S MODULES

Table of Contents

Related product manuals