EasyManua.ls Logo

GE VersaMax PLC - Page 139

GE VersaMax PLC
318 pages
Print Icon
To Next Page IconTo Next Page
To Next Page IconTo Next Page
To Previous Page IconTo Previous Page
To Previous Page IconTo Previous Page
Loading...
Input/ Output
Choices
Description
ALT
I, Q, M, T, G, R, AI, AQ,
constant, none
For the input scan, ALT specifies the address to
store scanned input point/word values. For the
output scan, ALT specifies the address to get
output point/word values from to send to the I/O
modules.
ok
flow, none
OK is energized when the scan completes
normally.
10.2.1.2 Do I/O for Inputs
If input references are specified, when the function receives power flow, the PLC
scans input points from the starting reference (ST) to the END reference. If a reference is
specified for ALT, copies of the new input values are placed in memory beginning at that
reference, and the real input values are not updated. ALT must be the same size as the
reference type scanned. If a discrete reference is used for ST and END, ALT must also be
discrete. If no reference is specified for ALT, the real input values are updated. This
allows inputs to be scanned one or more times during the program execution portion of
the CPU sweep.
10.2.1.3 Example Do I/O for Inputs:
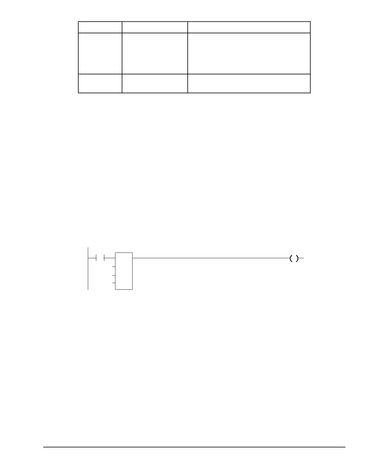
In this example, when the function receives power flow, the PLC scans references %
I0001-64 and %Q0001 is turned on. Copies of the scanned inputs are placed in internal
memory from %M0001-64. Because a reference is specified for ALT, the real inputs are
not updated. This allows the current values of inputs to be compared with their values at
the beginning of the scan.
%I0001
DO_ IO
ST
END
ALT
%Q0001
%I0001
%I0064
%M0001
10.2.1.4 Do I/O for Outputs
If output references are specified, when the function receives power flow, the PLC
writes the latest output values from the starting reference (ST) to the END reference to the
output modules. If outputs should be written to the output modules from internal memory
other than %Q or %AQ, the beginning reference can be specified for ALT.
10.2.1.5 Example Do I/O For Outputs:
In the next example, when the function receives power flow, the PLC writes values from
references %R0001-0004 to analog output channels %AQ001-004 and %Q0001 is turned
on. Because a reference is entered for ALT, the values at %AQ001-004 are not written to
output modules.
Instruction Set Reference GFK-1503E User Manual 139
For public disclosure

Table of Contents

Related product manuals