EasyManua.ls Logo

gefran 650 - Page 140

gefran 650
182 pages
Print Icon
To Next Page IconTo Next Page
To Next Page IconTo Next Page
To Previous Page IconTo Previous Page
To Previous Page IconTo Previous Page
Loading...
80208G_MHW_650-1250-1350_01-2017_ENG
138
5. Examples and applicative notes
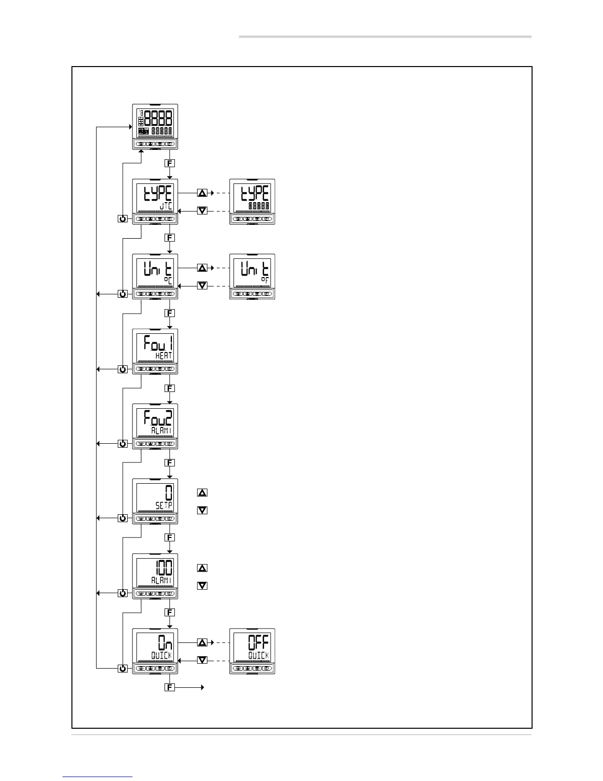
5.1.2. Quick configuration procedure for model 650–D-R00-00000-1
Home
Selecting sensor type
Selecting unit of measurement
The unit of measurement can be °C
or °F only if a TC or Rtd sensor is se-
lected
Select output 1 function
The functions proposed are based on type of logic output.
Select output 2 function
The functions proposed are based on type of logic output.
Setting Setpoint
Setting Alarm 1
Default: direct maximum absolute
Enable/disable quick configuration
raises the value
lowers the value
raises the value
lowers the value
return to select sensory type
> 2 s
> 2 s
> 2 s
> 2 s
> 2 s
> 2 s

Table of Contents

Other manuals for gefran 650

Related product manuals