EasyManua.ls Logo

gefran 650 - Page 40

gefran 650
182 pages
Print Icon
To Next Page IconTo Next Page
To Next Page IconTo Next Page
To Previous Page IconTo Previous Page
To Previous Page IconTo Previous Page
Loading...
80208G_MHW_650-1250-1350_01-2017_ENG
38
> 2 s
> 2 s
> 2 s
> 2 s
> 2 s
> 2 s
C C
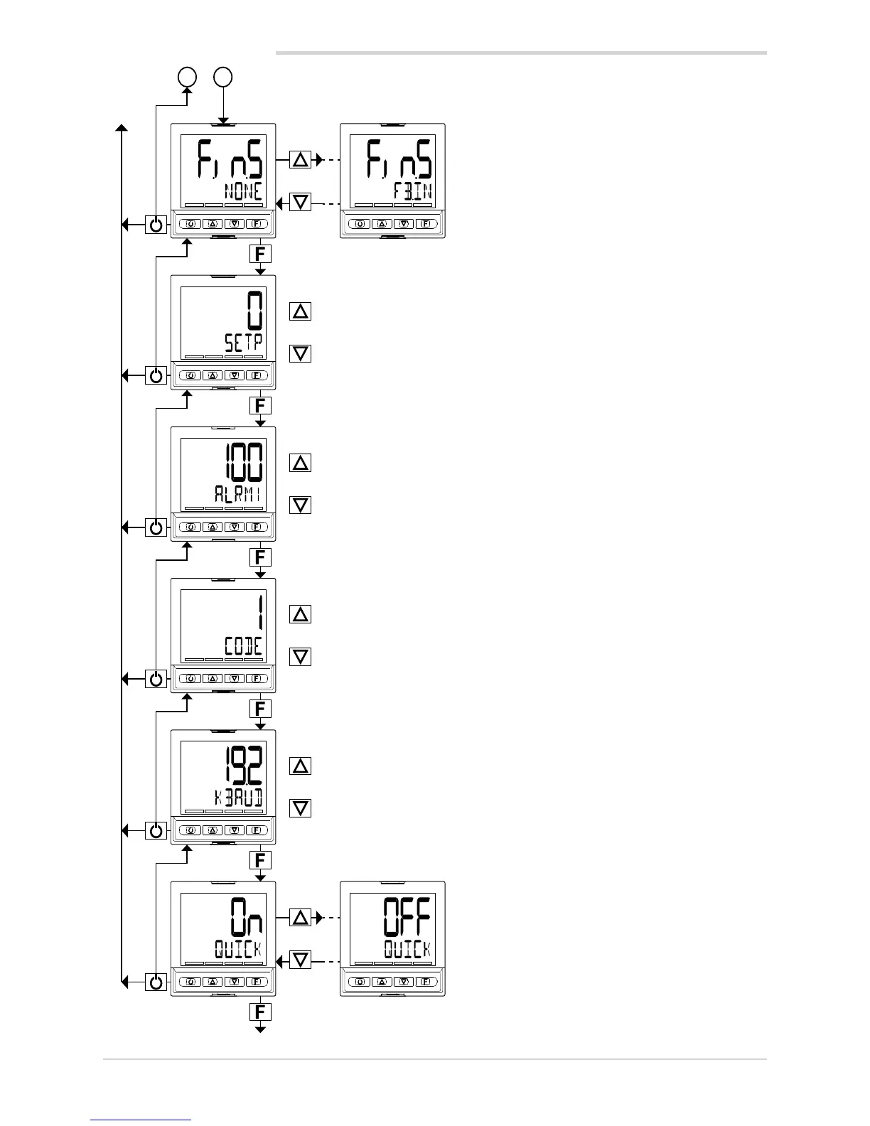
Setting Setpoint
Setting Alarm 1
Raises the value
Raises the value
Raises the value
Raises the value
Lowers the value
Lowers the value
Lowers the value
Lowers the value
Selecting digital input 5 function
The menu item appears only if the optional input is available
(for models 1250 and 1350 only).
Setting Modbus address
The menu item appears only if the optional RS485
port is available.
Selecting baudrate
The menu item appears only if the optional RS485
port is available.
Enabling / disabling Fast Configuration
Home
Selection of probe type
3. COMMISSIONING

Table of Contents

Other manuals for gefran 650

Related product manuals