EasyManua.ls Logo

Genie BDVR-8 - Rear Panel Connectors

Genie BDVR-8
104 pages
Print Icon
To Next Page IconTo Next Page
To Next Page IconTo Next Page
To Previous Page IconTo Previous Page
To Previous Page IconTo Previous Page
Loading...
BDVR Manual 12 Version 1.2
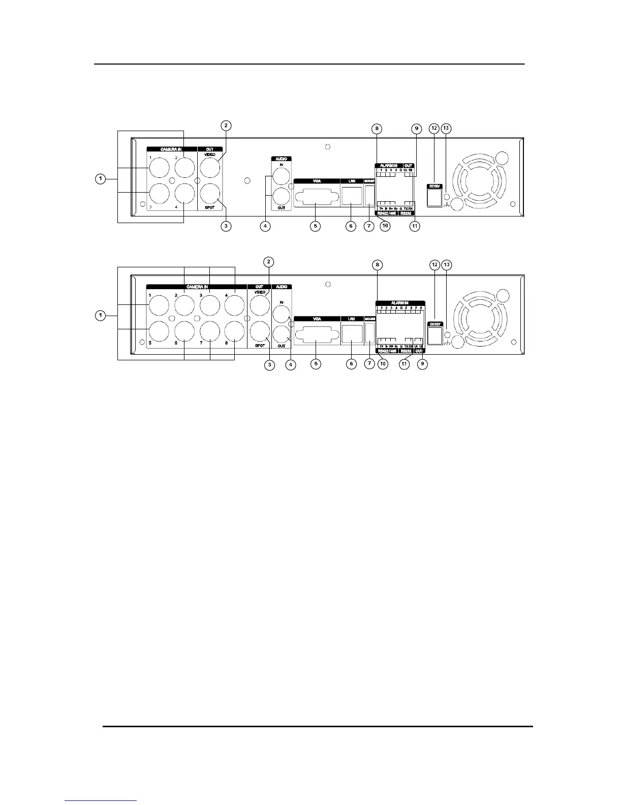
2. Rear Panel Connectors
1) CAM1~4 or 1~8: BNC input (Camera 1~4 or 1~8) connectors
2) MONITOR (Composite Output) : BNC standard composite video output connector.
3) SPOT : Spot Out connector
4) AUDIO Input / SPEAKER (Output) connectors : RCA
5) VGA Out connector
6) LAN (RJ-45 Ethernet Port) : For connecting to remote PC via Ethernet network.
7) MOUSE connection : Connect PS2 USB mouse to this port. To use USB only mouse,
connect it to USB port at rear panel.
8) SENSOR (ALARM IN 1~4 or 1~8) : For connecting alarm inputs.
9) RELAY (ALARM OUT 1) : For connecting alarm out relays.
10) RS-422 : For connecting to PTZ camera.
11) RS-232C : Development purposes only.
12) POWER : DC power Jack
13) FIELD GND : Ground

Table of Contents

Related product manuals