EasyManua.ls Logo

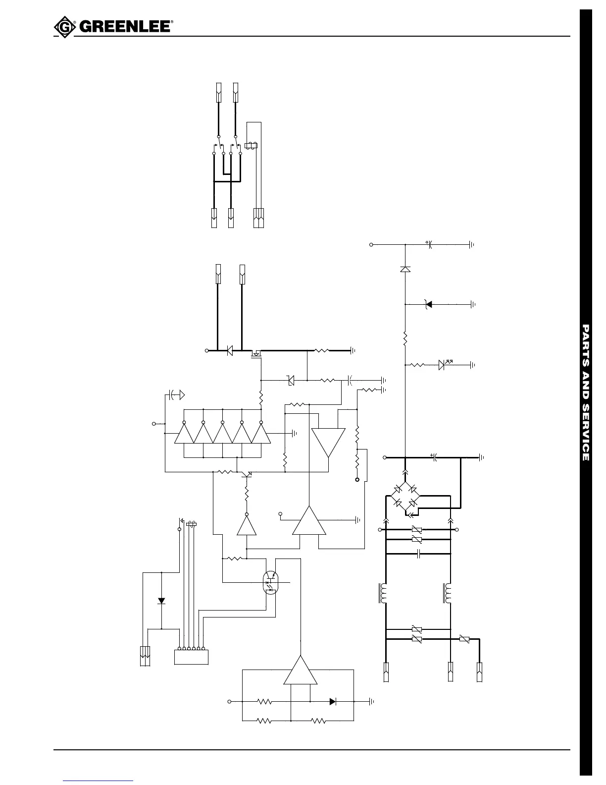
Greenlee 855 - Power Generation Unit Schematic Diagram

Greenlee 855
62 pages
Print Icon
To Next Page IconTo Next Page
To Next Page IconTo Next Page
To Previous Page IconTo Previous Page
To Previous Page IconTo Previous Page
Loading...
Greenlee Textron / Subsidiary of Textron Inc.
51
4455 Boeing Dr., Rockford, IL 61109-2988 815/397-7070
855 Smart Bender™
Power Generation Unit Schematic Diagram
J3:2
2
J3:1
1
U1:E
4049
11 12
U1:B
4049
5 4
J5:1
1
J5:2
2
J7:2
2
J7:1
1
J4:1
1
J4:2
2
HP4502
U2
2
3
7
8
6
5
J2
5
4
3
2
1
6
VCC
330u/25V
C4
1N914
D4
4.7K/10W
R14
20K/2W
R19
GRN
DS1
L1
L2
C1
C2
C3
C6
C5
C4
U1:C
4049
7 6
U1:D
4049
9 10
VCC
U4:A
LM393NE
1
8
4
+
3
-
2
R13
330
C1
1u/50V
R12
10K
R8
10K
R4
22
R7
68K
R3
10K
T1
2N3904
R1
4.7K
R2
4.7K
U1:F
4049
14 15
U1:A
4049
3 2
VCC
+HV
VCC
120vac
U4:B
LM393NE
7
+
5
-
6
L1
HURRICANE HL8196
R20
0vac
L2
HURRICANE HL8196
R15
R16
R17
R18
C3
10uF/250VAC
C5
1000u/250V
D3
1N914
R10
680
R6
10K
R5
10K
VCC
LM393NE
U3:A
-
2
+
3
4
8
1
J6:1
1
J6:2
2
C2
1u/50V
R11
10K
D2
1N4744
+HV
SKR2F17
D1
Q2
IXFH40N30
.04/5W
R9
1N4744
D6
A
K
J1:1
1
J1:2
2
J1:3
3
D7
1N4007
K A
direction relay
K1
8
1
INPUT(BLK)
INPUT(RED)
MOTOR +
OUTPUT
OUTPUT
TO MOTOR -
BLACK(-)
RED(+)
MFJ
Molex
MOTOR -
-HV
CONTROL
DIRECTION
GROUND
NEUTRAL
120 VAC
K2
DIRECTION
CONTROL
NOTE: Relay K2 mounted off-board.
Mini-fit Jr.
NOTE: Bridge rectifier mounted off-board.
NOTE: Varistors are V150LA20A.
NOTE: All resistors 1/4W unless noted.
Mini-fit Jr.
Molex
TO MOTOR +
R21
680

Table of Contents

Other manuals for Greenlee 855

Related product manuals