EasyManua.ls Logo

Happy HCS - CONTROL MENU

Default Icon
94 pages
Print Icon
To Next Page IconTo Next Page
To Next Page IconTo Next Page
To Previous Page IconTo Previous Page
To Previous Page IconTo Previous Page
Loading...
-CS -203_9 H701
3-9
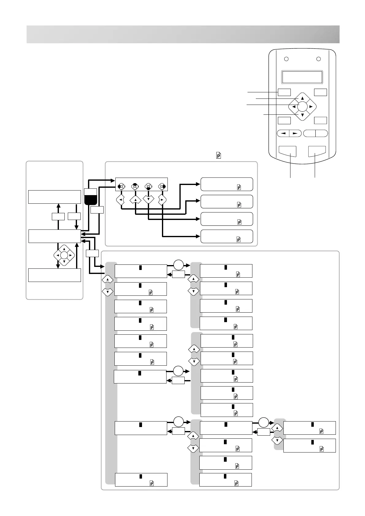
CONTROL MENU
This page shows the relationships for all machine func-
tions. (Drive mode and Function menu)
You can start embroidery and manually move the frame
only in Drive mode.
If you keep pressing a "MENU" button longer than 1
second, the direct frame movement menu will come up.
Use the "MENU" button to switch between Drive mode
and Menu mode. If you press the "MENU" button from
Drive mode, you will be switched to Menu mode. Then
you can select any function by the up and down arrow
keys. Pressing the “ENT” key enters your choice.
If you press the "MENU" button from any point in the
Menu mode, you will change to Drive mode.
Menu button
Down arrow button
Enter button
Stop button
Start button
Explanation page
Up arrow button
FORW ARD
MENU
P.FOOT
T.CUT
ENT.
START STOP
+
-
[MENU] Needle
Auto.needle change
5-15
[MENU] Read
Memory media
5-6
[MENU] Convert
Convert 9-5
[MENU] F•Posi
Frame position
9-6
[MENU] Create
Create 5-1
[MENU] Pattern
Pattern data
[PAT.] Select
Select 5-7
[PAT.] Erase
Erase 5-8
[PAT.] All clr
All clear 5-9
[MENU] Letter
Emb. letter
[LETTER] Char
Character 5-10
[LETTER] Area
Area 5-11
[LETTER] Size
Size 5-12
[LETTER] Style
Style 5-12
[LETTER] Mode
Mode 5-13
[MENU] Other
Other
[OTHER] Setup
Setup
[SETUP] System
System initialize
11-1
[SETUP] Speed
Speed setting 11-1
MENU
ENT.
MENU
ENT.
MENU
ENT.
MENU
ENT.
[OTHER] Clock
Clock 3-6
[OTHER] Detect
T.break detection
11-3
Org Top Cnt Pos
Original point return
9-3
Top 9-4
Frame center 9-4
Position return
9-3
MENU
MENU
MENU
Keep
pressing
START
STOP
ENT.
ID:10 Nd:12
123451
ID:10 Nd:12
123456 1000
X:-234.5
Y: 123.8
MENU
DRIVE
STOP
START
Frame move
DIRECT FRAME MOVEMENT MENU
[OTHER] Net
Network 9-8
[MENU] Log
Log-in•Log-out
9-B
[PAT.] Write
Export 5-9b

Table of Contents

Related product manuals