EasyManua.ls Logo

Honeywell OMNI 408 - Page 74

Honeywell OMNI 408
104 pages
Print Icon
To Next Page IconTo Next Page
To Next Page IconTo Next Page
To Previous Page IconTo Previous Page
To Previous Page IconTo Previous Page
Loading...
OMNI-408/OMNI-408EU Installation and Setup Guide
92
ARM
AC/LB
READY
1
2
3
4
5
6
7
8
STAY
INST
COVER
OPEN
Stay Instant
Bypass Code
*
0#
789
456
123
PAF
+1
+2
+4
+8
+16
TX LB
RF. SPVR
+1
+2
+4
+8
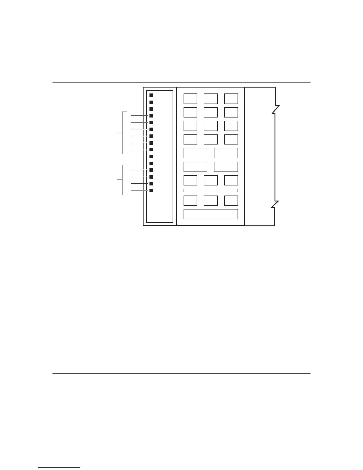
Question Number
Data
XK108-001-V0
+32
Figure 7. Keypad Programming
Question Numbers = Zone LEDs
Zone LEDs 1 through 5 display the current question number (not the specific location within each
question). In Figure 7, the question number is the total you get when you add the values of all LEDs
that are lit. When programming system questions, the LEDs displaying the question number are
constantly lit. When programming RF questions, the LEDs displaying the question number blink
rapidly.
Examples:
Zone 1 lit, Zones 2-5 off = question 01
Zone 1 lit, Zone 2 lit, Zones 3-5 off = question 03
Zone 2 lit, Zone 3 lit, Zone 4 lit, Zones 1 and 5 off = question 14
Location Contents = System Status LEDs
The remaining status LEDs (STAY, INST, TX LB and RF SPRV) display data that resides in each
location within the current question. As shown in the diagram above, the value located next to each
LED that is lit must be added to calculate the total data for each location.
Examples:

Table of Contents

Related product manuals