EasyManua.ls Logo

Hyd-Mech V18APC - Page 71

Hyd-Mech V18APC
73 pages
Print Icon
To Next Page IconTo Next Page
To Next Page IconTo Next Page
To Previous Page IconTo Previous Page
To Previous Page IconTo Previous Page
Loading...
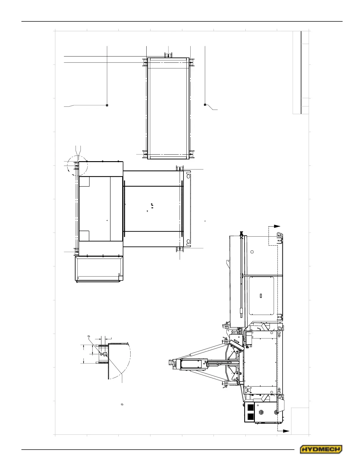
8.5
A
A
0
82.1
72.8
1.0
0
3.5
73.4
70.5
6.5
80.2
85.2
5.7
90.8
55.0
45.6
23.0
102.5
46.0
B
SECTION
A-A
SCALE 1 : 20
FOUNDATION/MOUNTING LAYOUT
1.25
6.00
3.00
.75 THRU ALL
.66 THRU ALL
3/4-10 UNC THRU ALL
DETAIL
B
SCALE 1 : 8
THE DATA/DESIGN CONTAINED HEREIN IS PROPRIETARY
AND CONFIDENTIAL.REPRODUCTION,PUBLICATION OR
DISTRIBUTION OF ANY PART REQUIRES WRITTEN CONSENT
OF HYD-MECH GROUP.THIS DATA IS THE PROPERTY OF
HYD MECH GROUP AND ITS POSSESION CONFERS NO
LICENSE TO USE OR RIGHT OR LICENSE TO DISCLOSE IT
TO OTHERS FOR ANY PURPOSE WHATSOEVER.
ALL RIGHTS RESERVED.
A
0
B
C
D
E
G
F
H
I
J
K
L
M
2
1
4
3
5
8
7
6
2
1
4
3
5
8
7
6
G
F
E
D
C
B
A
H
I
J
K
L
M
0
SCALE
SHEET
REV
DRAWING NUMBER:
WOODSTOCK. ONTARIO. CANADA N4S 0A9
HYDMECH GROUP LIMITED
50002273
1:24
5
OF
5
B

Table of Contents

Related product manuals