EasyManua.ls Logo

Hyd-Mech V18APC - V18 Apc Layout Rh (Canted Head)

Hyd-Mech V18APC
73 pages
Print Icon
To Next Page IconTo Next Page
To Next Page IconTo Next Page
To Previous Page IconTo Previous Page
To Previous Page IconTo Previous Page
Loading...
8.4
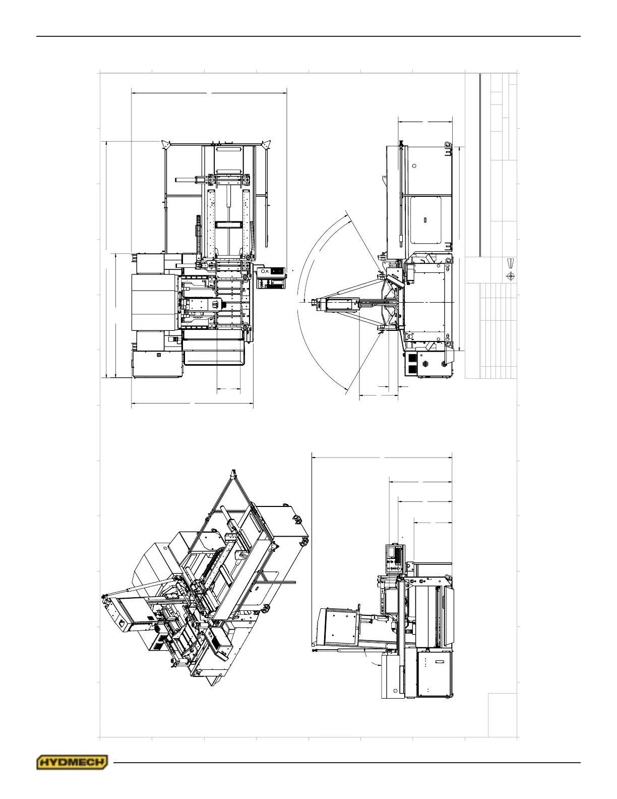
V18APC LAYOUT RH (CANTED HEAD)
120°
160.93
7.35
30.57
42.69
60°
96.04
18.50
186.55
97.73
122.59
42.57
49.63
110.73
30.13
93°
THE DATA/DESIGN CONTAINED HEREIN IS PROPRIETARY
AND CONFIDENTIAL.REPRODUCTION,PUBLICATION OR
DISTRIBUTION OF ANY PART REQUIRES WRITTEN CONSENT
OF HYD-MECH GROUP.THIS DATA IS THE PROPERTY OF
HYD MECH GROUP AND ITS POSSESION CONFERS NO
LICENSE TO USE OR RIGHT OR LICENSE TO DISCLOSE IT
TO OTHERS FOR ANY PURPOSE WHATSOEVER.
ALL RIGHTS RESERVED.
A
0
B
C
D
E
G
F
H
I
J
K
L
M
2
1
4
3
5
8
7
6
2
1
4
3
5
8
7
6
G
F
E
D
C
B
A
H
I
J
K
L
M
0
ECN NUMBER
REV
DATE
BY
REVISIONS
STANDARD
HYDMECH
TOLERANCES
UNLESS
OTHERWISE
SPCIFIED
DIMENSIONS
ARE IN INCHES
THIRD ANGLE PROJECTION
TITLE
DRWN BY:
CHKED BY:
MAT'L:
DATE:
SCALE
SHEET
REV
DRAWING NUMBER:
WOODSTOCK. ONTARIO. CANADA N4S 0A9
HYDMECH GROUP LIMITED
50002273
MO
Apr 17, 2019
SJ
2019-04-26
1:32
4
DATE:
PART WEIGHT:
MATERIAL CODE:
No Coating
COATING:
V18APC/60 - RH INFEED
OF
5
MO
01/19/2018
ECN-01326
-
MO
03/15/2018
ECN-01358
A
MODEL:
COMPONENT GROUP:
V18APC_60
B
00 - Top Level
ECN-01624
MO
B
04/15/2019

Table of Contents

Related product manuals