EasyManua.ls Logo

HYDAC FILTER SYSTEMS OLF-5 Series - Dimensions; Hydraulic Diagram; Drawing OLF-5-S; Fig. 6 OLF-5-S

HYDAC FILTER SYSTEMS OLF-5 Series
100 pages
Print Icon
To Next Page IconTo Next Page
To Next Page IconTo Next Page
To Previous Page IconTo Previous Page
To Previous Page IconTo Previous Page
Loading...
3 | Filter unit/filter housing over-view HYDAC FILTER SYSTEMS GMBH
32 / 100 MoWa OLF-5 3433222d en-us print
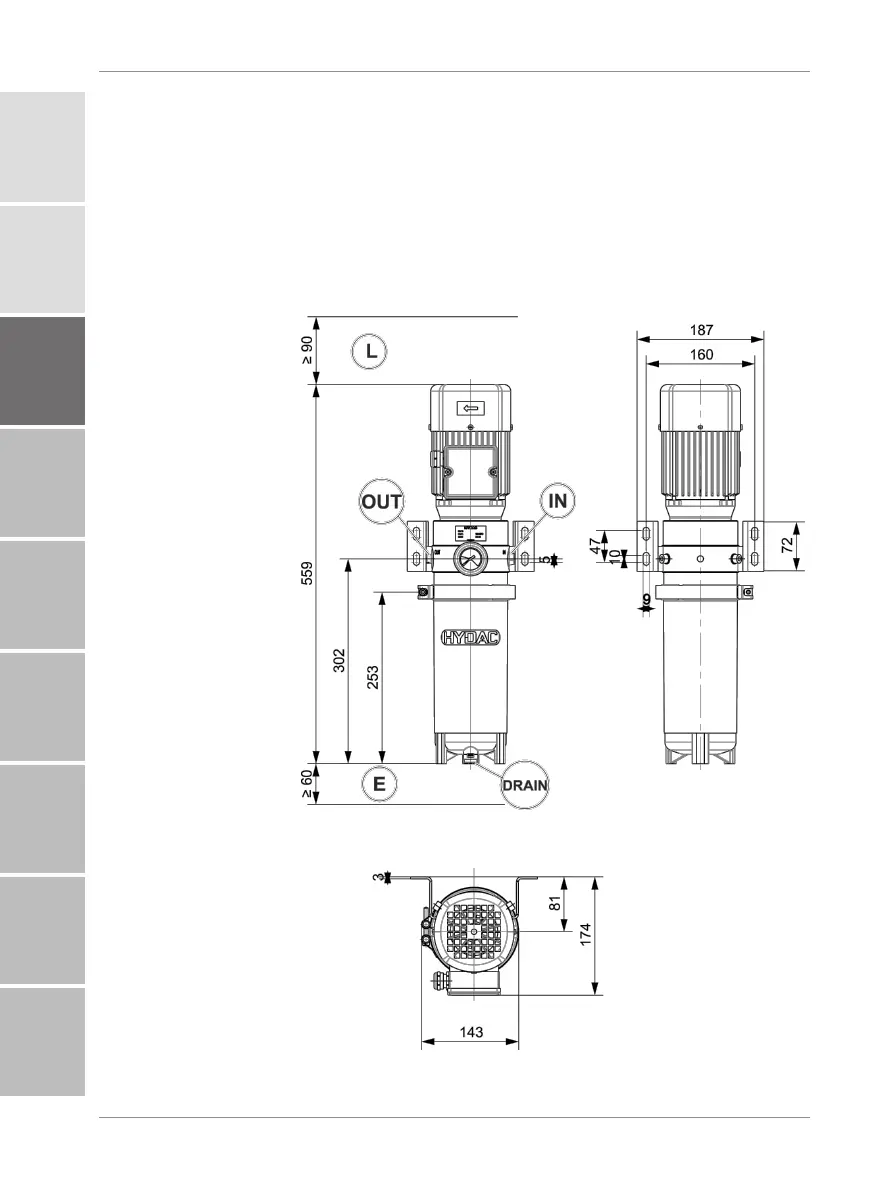
3.6 Dimensions / hydraulic diagram
In this chapter, you will find the drawings with the dimensions
and the hydraulic diagram of the different versions of the filter
units/filter housings.
3.6.1 Drawing OLF-5-S-…
The filtration unit has the following dimensions:
Fig.6:
OLF-5-S-… - 1204891
1
2
3
4
5
6
7
8
A

Table of Contents