EasyManua.ls Logo

Hydrafeed MSV 80 - Page 190

Default Icon
224 pages
Print Icon
To Next Page IconTo Next Page
To Next Page IconTo Next Page
To Previous Page IconTo Previous Page
To Previous Page IconTo Previous Page
Loading...
187
1
3
2
4
5
678
A
B
C
D
E
F
G
H
Model
Weight
Quantity
Unit:mm
Name
Date
Revision
Part No.
Draw
Material
Scale
Page
1
1 / 1
>400....±0.8
120-400....±0.5
30-120....±0.3
6-30....±0.2
3
-
6
.
.
.
.
±
0
.
1
<
3
.
.
.
.
±
0
.
1
G
e
n
e
r
a
l
T
o
l
e
r
a
n
c
e
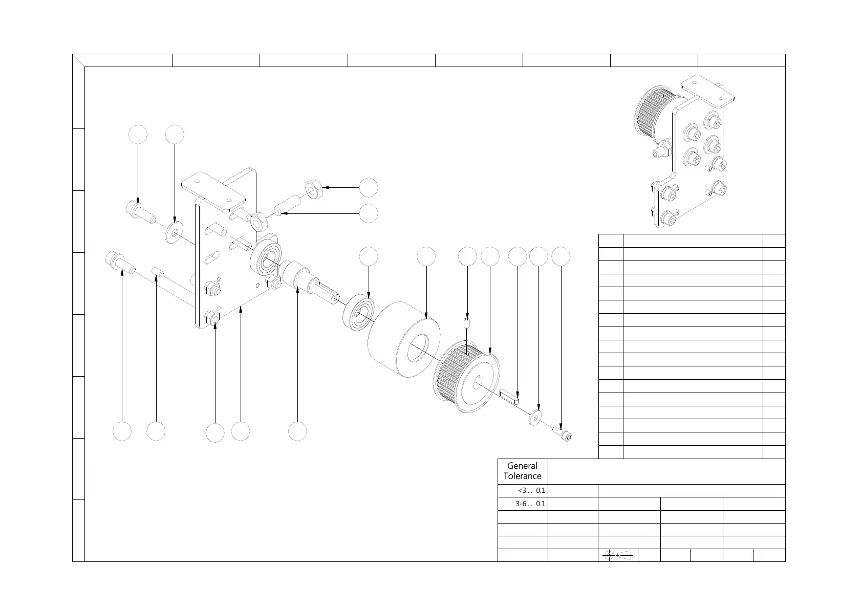
A4
Rolly
T04301-000X
S65 / 80
Idle wheel set
1 : 2.5
2015/3/26
B
Q'ty
Part Number
Item
1
T14206-000X
1
1
T14208-000X
2
1
T14301-000X
3
1T14302-000X
4
4
Hex socket cap screws-SW Set[M8x1.25x25L]
5
1
Hex socket cap screws-S Set[M5x1.0x16L]6
4Hex socket cap screws-S Set[M8x1.25x25L]7
1
Nut[M10x1.5]
8
4
Nut[M8x1.25]
9
1
Washer[5x16x2.0]
10
4
Washer[8.5x23x2.0]
11
1
Set Screw[M10x1.5x30L]
12
1
Set Screw[M5x0.8x10L]
13
4
Set Screw[M6x1.0x12L]
14
2
Radial Bearing[6003ZZ]
15
1
Double head round keys[5Bx5Hx25L]
16
5 14 4
1013 16
21
15
12
8
9
3
6
11
7

Table of Contents

Related product manuals