EasyManua.ls Logo

Hydrafeed MSV 80 - Page 212

Default Icon
224 pages
Print Icon
To Next Page IconTo Next Page
To Next Page IconTo Next Page
To Previous Page IconTo Previous Page
To Previous Page IconTo Previous Page
Loading...
209
1
3
2
45678
A
B
C
D
E
F
G
H
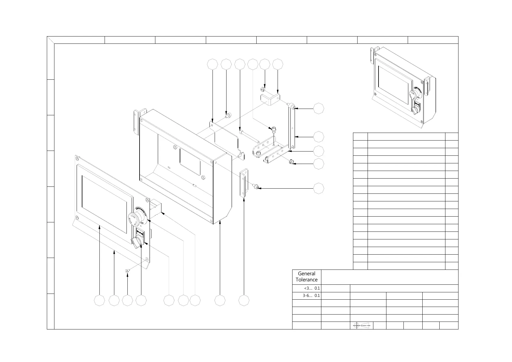
Q'ty
Part Number
Item
1
EMG-Panel
1
1
EMG-Stop
2
1
Switch Panel
3
1
Switch
4
1
T11305-000X
5
1
T11306-000X
6
1
T11324-000X
7
2
T11326-000X
8
1
T11327-000X
9
1
T11328-000X
10
2
Hex socket cap screws-SW Set[M6x1.0x12L]
11
6Hex socket cap screws-S Set[M6x1.0x12L]12
1
Hex socket cap screws[M6x1.0x20L]
13
1
Hex socket cap screws[M6x1.0x65L]
14
2
Nut-S Set[M6x1.0]
15
1
[TS1070]
16
4
Hex socket flat head screw[M5x0.8x10L]
17
17
47
3
1 2
9 8
12
15
6
13
11
10 9
16
5
1214
15
Model
Weight
Quantity
Unit:mm
Name
Date
Revision
Part No.
Draw
Material
Scale
Page
1
1 / 1
>400....±0.8
120-400....±0.5
30-120....±0.3
6-30....±0.2
3
-
6
.
.
.
.
±
0
.
1
<
3
.
.
.
.
±
0
.
1
G
e
n
e
r
a
l
T
o
l
e
r
a
n
c
e
A4
Rolly
T01302-000X
S80
Touch screen set
1 : 4
2015/2/11
A

Table of Contents

Related product manuals