EasyManua.ls Logo

Hydrafeed MSV 80 - Page 217

Default Icon
224 pages
Print Icon
To Next Page IconTo Next Page
To Next Page IconTo Next Page
To Previous Page IconTo Previous Page
To Previous Page IconTo Previous Page
Loading...
214
1
3
2
45678
A
B
C
D
E
F
G
H
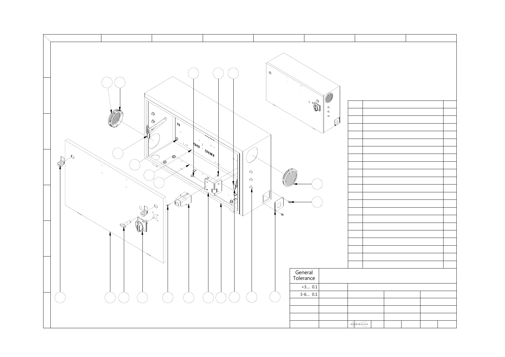
Q'ty
Part Number
Item
1
T11301-000X
1
1
T11307-000X
2
1
T11308-000X
3
1
T11310-0000
4
1
T11311-000X-1
5
2
T11311-000X-2
6
1
T11312-000X-1
7
1
T11312-000X-2
8
1
T11314-000X
9
1
T11331-000X
10
2
Ventilator Filter Unit -1
11
2
Ventilator Filter Unit -2
12
1
main power-1
13
1
main power-4
14
8
Pan head phillips screw[M4x0.7x8L]
15
2
Hex socket cap screws-SW Set[M5x0.8x10L]
16
2
Hex socket cap screws-SW Set[M6x1.0x10L]17
6
Hex socket cap screws-SW Set[M8x1.25x20L]
18
2
Hex socket cap screws-S Set[M5x1.0x16L]
19
2
Nut-SW Set[M5x0.8]
20
8
Nut-SW Set[M8x1.25]
21
10
6
13
5
2
8
1112
114
19
17
20
15
7
9
12
16
4
3
21
18
Model
Weight
Quantity
Unit:mm
Name
Date
Revision
Part No.
Draw
Material
Scale
Page
1
1 / 1
>400....±0.8
120-400....±0.5
30-120....±0.3
6-30....±0.2
3
-
6
.
.
.
.
±
0
.
1
<
3
.
.
.
.
±
0
.
1
G
e
n
e
r
a
l
T
o
l
e
r
a
n
c
e
A4
Rolly
T21302-000X(H)
S80
Electrically box set
1 : 8
2015/2/11
A

Table of Contents

Related product manuals