EasyManua.ls Logo

IBM iSeries 800 - Page 524

IBM iSeries 800
622 pages
Print Icon
To Next Page IconTo Next Page
To Next Page IconTo Next Page
To Previous Page IconTo Previous Page
To Previous Page IconTo Previous Page
Loading...
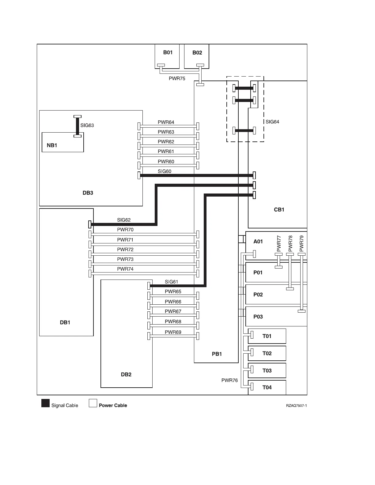
Table 29. FC 5074, FC 5079, FC 5094, FC 9094 Expansion I/O Tower - Power cables - single line
cord
512 Hardware (Remove and Replace; Part Locations and Listings)

Table of Contents

Other manuals for IBM iSeries 800

Related product manuals