EasyManua.ls Logo

Ideal Boilers LOGIC Code Combi 26 - Page 10

Ideal Boilers LOGIC Code Combi 26
64 pages
Print Icon
To Next Page IconTo Next Page
To Next Page IconTo Next Page
To Previous Page IconTo Previous Page
To Previous Page IconTo Previous Page
Loading...
10
Ideal Logic Code Combi - Installation and Servicing
GENERAL
1
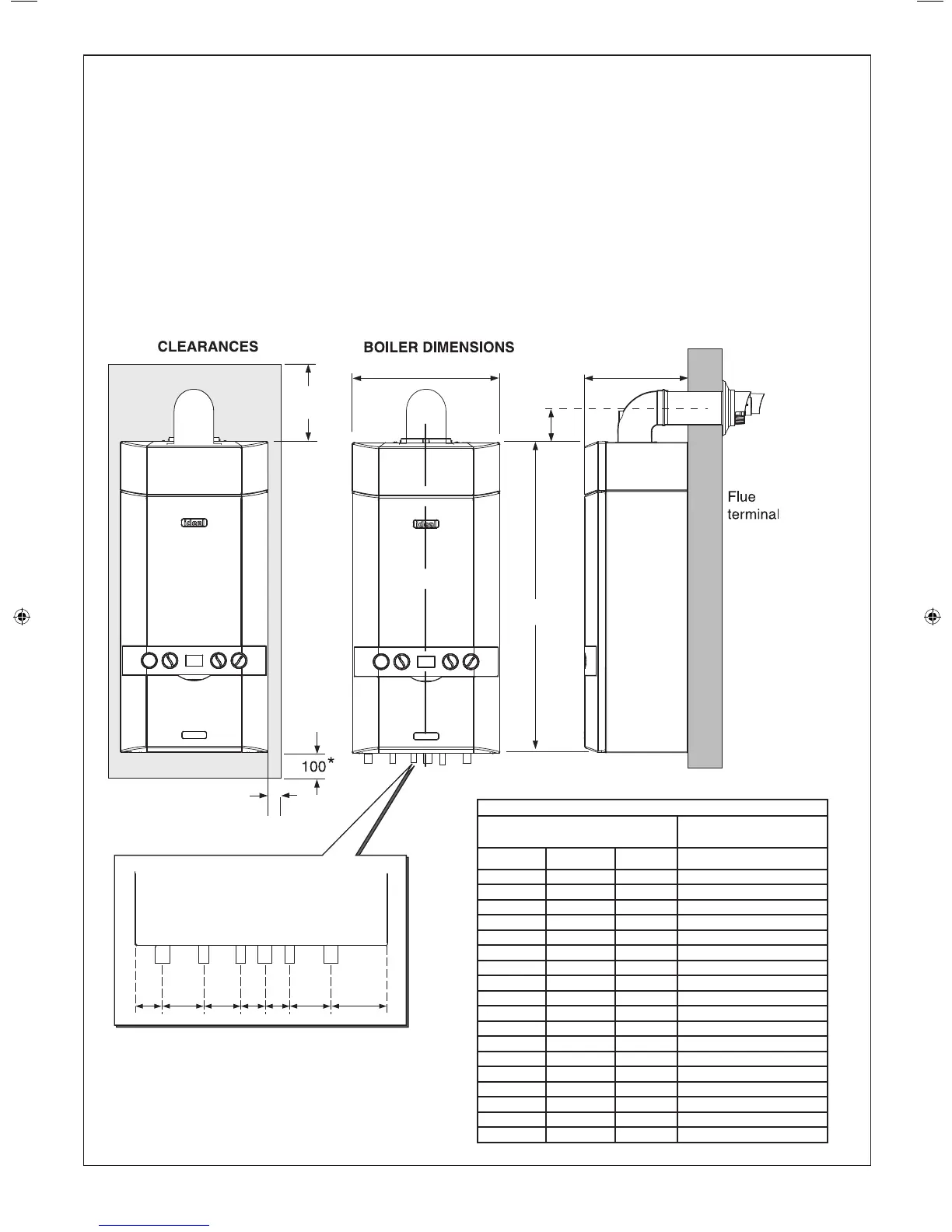
BOILER DIMENSIONS, SERVICES & CLEARANCES
all dimensions in mm




Additional space will be required for installation, depending upon

Side and Rear Flue
a. 


space into which the boiler is going to be installed is less


*Bottom clearance


the consumer to view the system pressure gauge, and to provide

Front clearance

from the cupboard door but 450mm overall clearance is still

Rear Flue Only

395 278
76
830
Side flue
dim. A
2.5 from case
206279-10252
43 65 57 38 39 65 88
CH Flow
DHW Outlet
Gas Inlet
Condensate
DHW Inlet
CH Return
Connections
SIDE FLUE ONLY

of Boiler to Outside wall


26 33 38
   
   170 mm
   
   200 mm
   210 mm
   225 mm
   250 mm
   
   
   275 mm
   
   300 mm
  N/A 320 mm
  N/A 330 mm
  N/A 345 mm
  N/A 
 N/A N/A 370 mm
 N/A N/A 
206279-1.indd 10 06/01/2011 09:09:40

Related product manuals