EasyManua.ls Logo

Ideal Boilers LOGIC Code Combi 26 - Page 21

Ideal Boilers LOGIC Code Combi 26
64 pages
Print Icon
To Next Page IconTo Next Page
To Next Page IconTo Next Page
To Previous Page IconTo Previous Page
To Previous Page IconTo Previous Page
Loading...
21
INSTALLATION
Ideal Logic Code Combi - Installation and Servicing

1. A maximum number of extension ducts are
possible for each boiler output with one suitably

 
 
 
Refer to Frame 11 for lengths
2. Flue extensions of greater length than 1m should
be supported with the bracket provided, suitably

3. 

19
FLUE EXTENSION DUCTS - continued
20
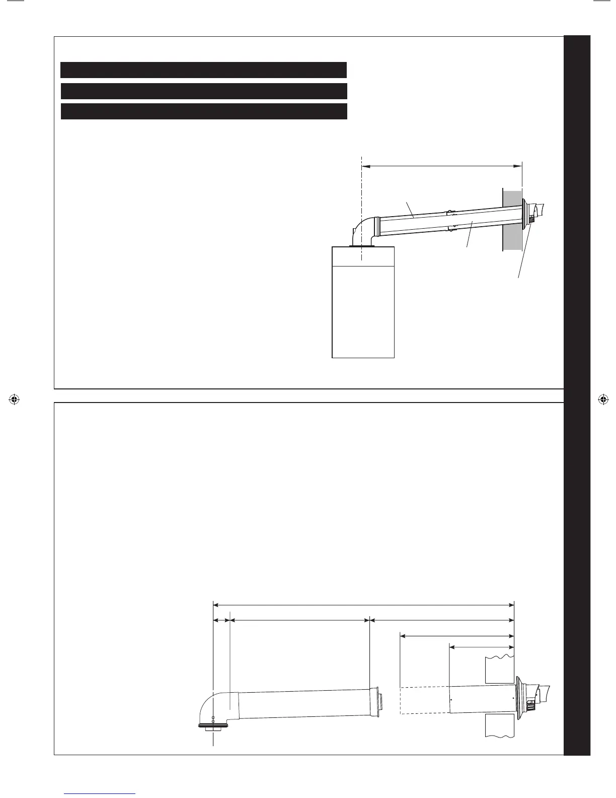
FITTING THE KIT
Note. Side ue shown
General arrangement
206279-10260
Boiler
Standard flue
Terminal grille
Flue length
Extension flue


1. 

2. 
3. 
4. 

5. 

6. 


7. 


L
300
500
Y
950
65
3G9616
Useamaximumof9mextendedueONLY(26)
Useamaximumof8mextendedueONLY(33)
Useamaximumof6mextendedueONLY(38)
206279-1.indd 21 06/01/2011 09:10:03

Related product manuals