EasyManua.ls Logo

IMO iDrive - EMC: Good Wiring Practice - Motor Side

IMO iDrive
90 pages
Print Icon
To Next Page IconTo Next Page
To Next Page IconTo Next Page
To Previous Page IconTo Previous Page
To Previous Page IconTo Previous Page
Loading...
Chapter 3 Environment description and installation
3-11
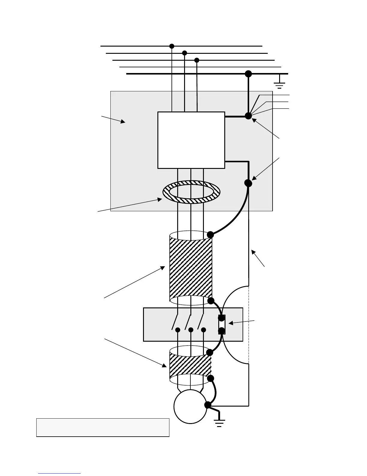
3.3.4 EMC: Good wiring practice – motor side
400V iDrive
(for example)
Motor
L1(L) L2 L3(N) PE
P N T1 T2 T3 PE
L1
L2
L3
N
E/
G
roun
d
Enclosure back plate
(paint/coating free)
Brass earth studs
fixed through
back plate and
secured with
shake-proof
washers.
N
B. Both ‘PE’
terminals must
be externally
grounded (as
shown
)
.
Optional ferrite
choke, only required
if motor cable is
very long.
N
ote: For very long
cables an ACR
should be used
External earth / ground
conductor if used.
*
Local
Isolator
Earth cables
to other
equipment in
enclosure
Note: Power suppl
y
side ancillar
y
equipment
not shown in this diagram, for clarity.
Earth / ground
cables connected
through isolator
Armoured or
screened cable,
3C or 4C.
Screen
connected at all
ends as shown.
*
* NOTE
Screen / armour must
b
e connected as shown
at each end of cable
sections.
If motor connection
box is plastic, screen
must be secured to the
metal frame of the
motor.
415V 50Hz
3-phase + N
Power supply

Related product manuals