EasyManua.ls Logo

Inovance SV820N Series - 3.5.2 DO Circuit

Inovance SV820N Series
181 pages
To Next Page IconTo Next Page
To Next Page IconTo Next Page
To Previous Page IconTo Previous Page
To Previous Page IconTo Previous Page
Loading...
- 56 -
3 Wiring
3
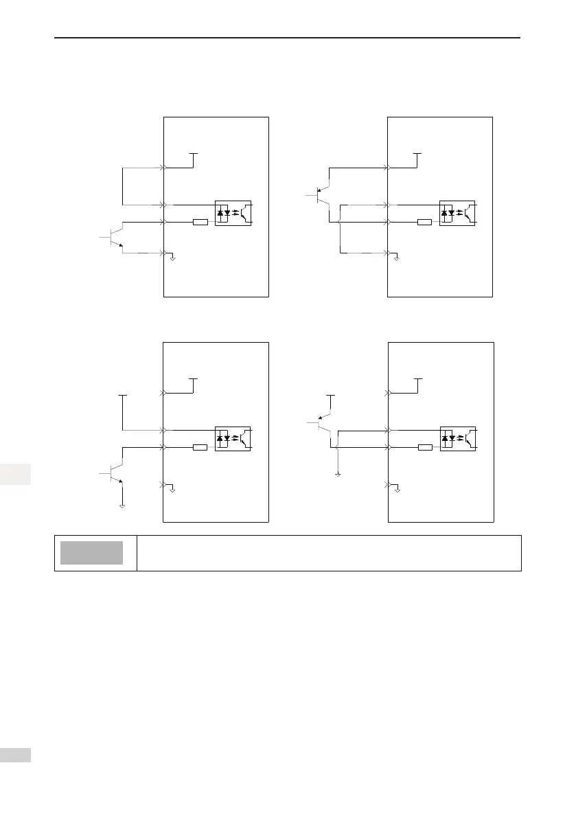
When the host controller provides OC output:
● Whentheinternal24Vpowersupplyoftheservodriveisused:
Servo drive
15
COM-
+24 V
power
supply
DI17
24
V
COM+
19
17
2
NPN
4.7 kΩ
Servo drive
15
COM-
+24 V
power
supply
DI17
24
V
COM+
19
17
2
PNP
4.7 kΩ
● Whentheexternalpowersupplyisused:
Servo drive
15
External
+24 V DC
DI17
24
V
COM+
19
17
2
External 0 V
NPN
4.7 kΩ
Servo drive
15
External
+24 V DC
DI19
24
V
COM+
19
17
2
4.7 kΩ
External 0 V
PNP
Note
PNP and NPN input cannot be applied in the same circuit.

Table of Contents

Related product manuals