EasyManua.ls Logo

JLG 3513 - Page 118

JLG 3513
136 pages
Print Icon
To Next Page IconTo Next Page
To Next Page IconTo Next Page
To Previous Page IconTo Previous Page
To Previous Page IconTo Previous Page
Loading...
Electrical System
9.18
3507, 3508, 3509, 3512, 3513, 4007, 4008, 4009, 4012, 4013
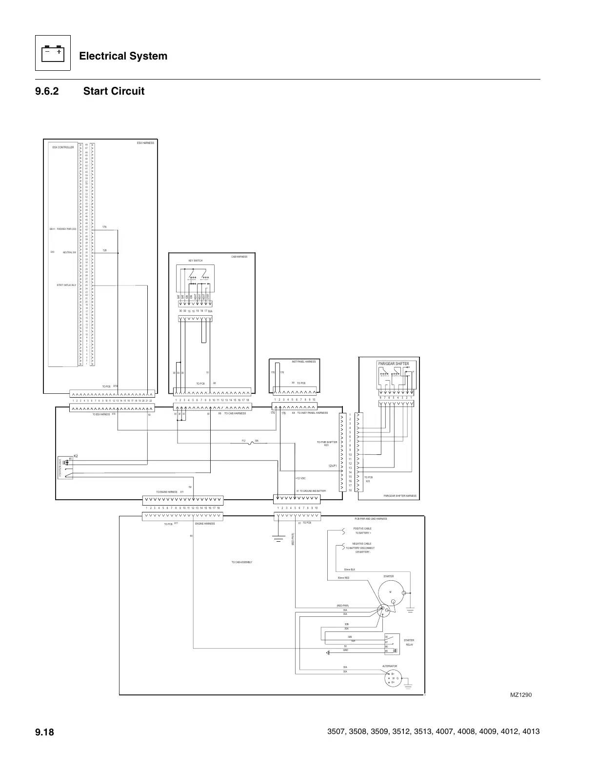
9.6.2 Start Circuit
MZ1290
FNR/GEAR SHIFTER
7
8
3
5
6
4
1
2
9
48675
231
RF
N
1
2
3
4
1
4
3
2
16
14
15
13
12
11
10
18
17
1
2
23
13
5
3
4
6
7
10
8
9
11
12
18
14
15
16
17
19
20
21
22
28
24
25
26
27
31
29
30
32
33
36
34
35
37
38
41
39
40
42
43
54
49
46
44
45
47
48
50
51
52
53
55
58
56
57
66
62
60
59
61
64
63
65
68
67
KEY
SWITCH
STRT INTLK RLY
F12 30A
TO
C
AB
A
SS
E
M
B
LY
TO PCB
X1
PCB PWR AND GND HARNESS
TO PCB
X11
ENGINE HARNESS
(RED-PWR)
50
RELAY
STARTER
STARTER
ALTERNATOR
50mm BLK
50mm RED
30A
30A
50
GND
(RED-PWR)
30A
30A
POSITIVE CABLE
TO BATTERY +
NEGATIVE CABLE
TO BATTERY DISCONNECT
OR BATTERY -
+12 VDC
TO GROUND AND BATTERY
X1
TO CAB HARNESS
X6
30
30 30 50
TO INST PANEL HARNESS
X4
176
176
TO FNR SHIFTER
X23
12V-P1
STRT INTLK RLY
K2
50
TO ENGINE HARNESS
X11
X23
FNR/GEAR SHIFTER HARNESS
TO PCB
X19
TO ESX HARNESS
50
X19
ESX HARNESS
129
176
ESX CONTROLLER
TO PCB
CAB HARNESS
X6
303030
50
176
176
INST PANEL HARNESS
X4
TO PCB
TO PCB
11 12 91071325468123 10546879 1413 15 1716 18
M
85
87
86
30
D+
G
B+
W
85
86
30
87
87a
18532467 109111312 14 21181615 17 19 20 22
NEUTRAL SW
FWD/REV PWR (DO)
DI/3
BB1/1
4213 1710756 89 1211 13 1514 16 18
1919
1515
3030
50A
17
BAT
IGN
IGN
HEAT
BAT
0
1
2
3
3
2
1
0
HEAT
HEAT
STRT
10123 546879
30B
50A
30B
50A
Courtesy of Crane.Market

Table of Contents

Other manuals for JLG 3513

Related product manuals