EasyManua.ls Logo

JLG 3513 - Charging Circuit

JLG 3513
136 pages
Print Icon
To Next Page IconTo Next Page
To Next Page IconTo Next Page
To Previous Page IconTo Previous Page
To Previous Page IconTo Previous Page
Loading...
9.19
3507, 3508, 3509, 3512, 3513, 4007, 4008, 4009, 4012, 4013
Electrical System
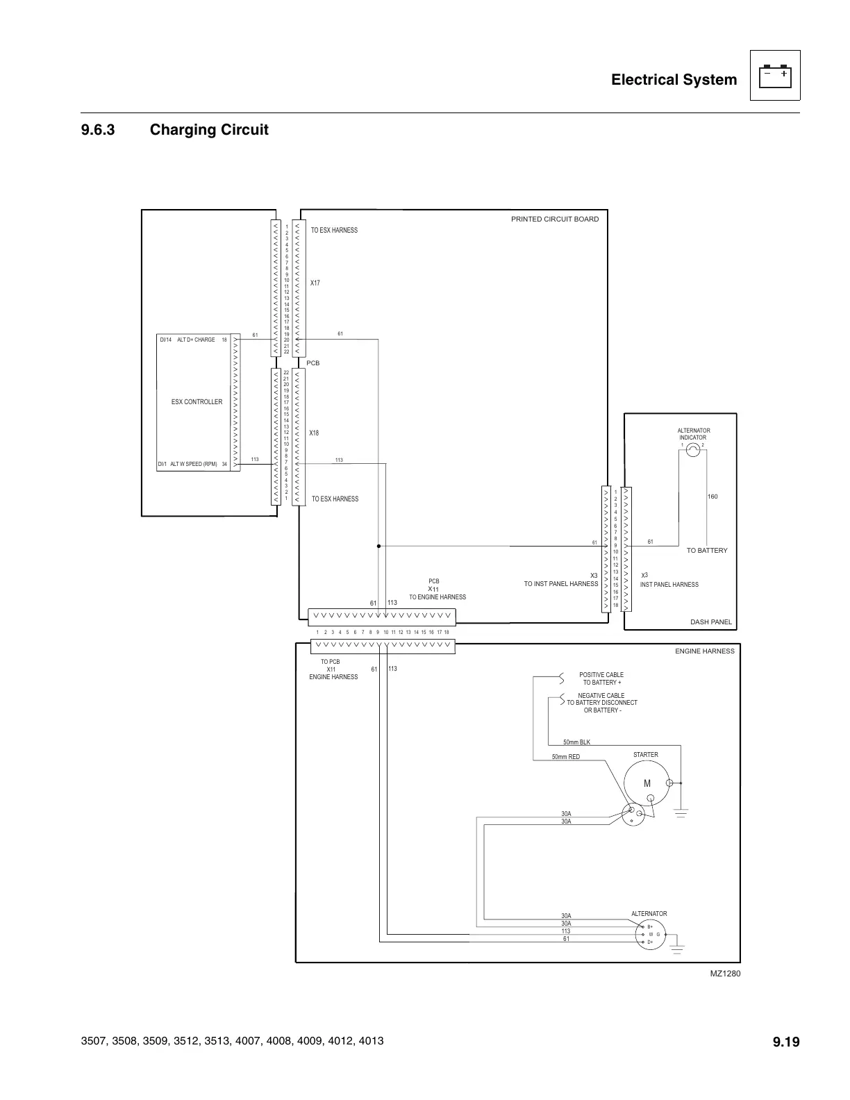
9.6.3 Charging Circuit
PCB
PRINTED CIRCUIT BOARD
160
DASH PANEL
X11
ENGINE HARNESS
TO
PCB
NEGATIVE CABLE
TO BATTERY DISCONNECT
OR BATTERY -
ENGINE HARNESS
TO PCB
X11
ENGINE HARNESS
61
113
STARTER
ALTERNATOR
50mm BLK
50mm RED
30A
30A
113
61
30A
30A
POSITIVE CABLE
TO BATTERY +
M
D+
G
B+
W
MZ1280
TO BATTERY
61
113
X18
113
TO ESX HARNESS
TO ESX HARNESS
61
X17
TO INST PANEL HARNESS
X3
61
ESX CONTROLLER
61
113
INST PANEL HARNESS
X3
61
ALTERNATOR
INDICATOR
11
12
12
3
105
4
6
8
7
91413
15
17
16
18
15
16
17
18
7
8
9
10
1
1
12
13
14
1
2
3
4
5
6
12
14
13
10
11
22
20
21
17
18
19
15
16
5
8
9
6
7
3
4
1
2
7
10
9
8
2
6
5
4
3
1
18
19
20
16
17
13
14
15
11
12
22
2
1
18
34
ALT D+ CHARGE
ALT W SPEED (RPM)
DI/14
DI/1
12
Courtesy of Crane.Market

Table of Contents

Other manuals for JLG 3513

Related product manuals