EasyManua.ls Logo

Johnson Controls DSH024C Series - Dimensional Data; FIGURE 6 - DSH024 C and DSH036 C Dimensional Data: 2-3 Ton Horizontal A;C Unit

Johnson Controls DSH024C Series
52 pages
Print Icon
To Next Page IconTo Next Page
To Next Page IconTo Next Page
To Previous Page IconTo Previous Page
To Previous Page IconTo Previous Page
Loading...
16
FORM 145.32-IOM5
ISSUE DATE: 04/08/2019
SECTION 1 – INSTALLATION
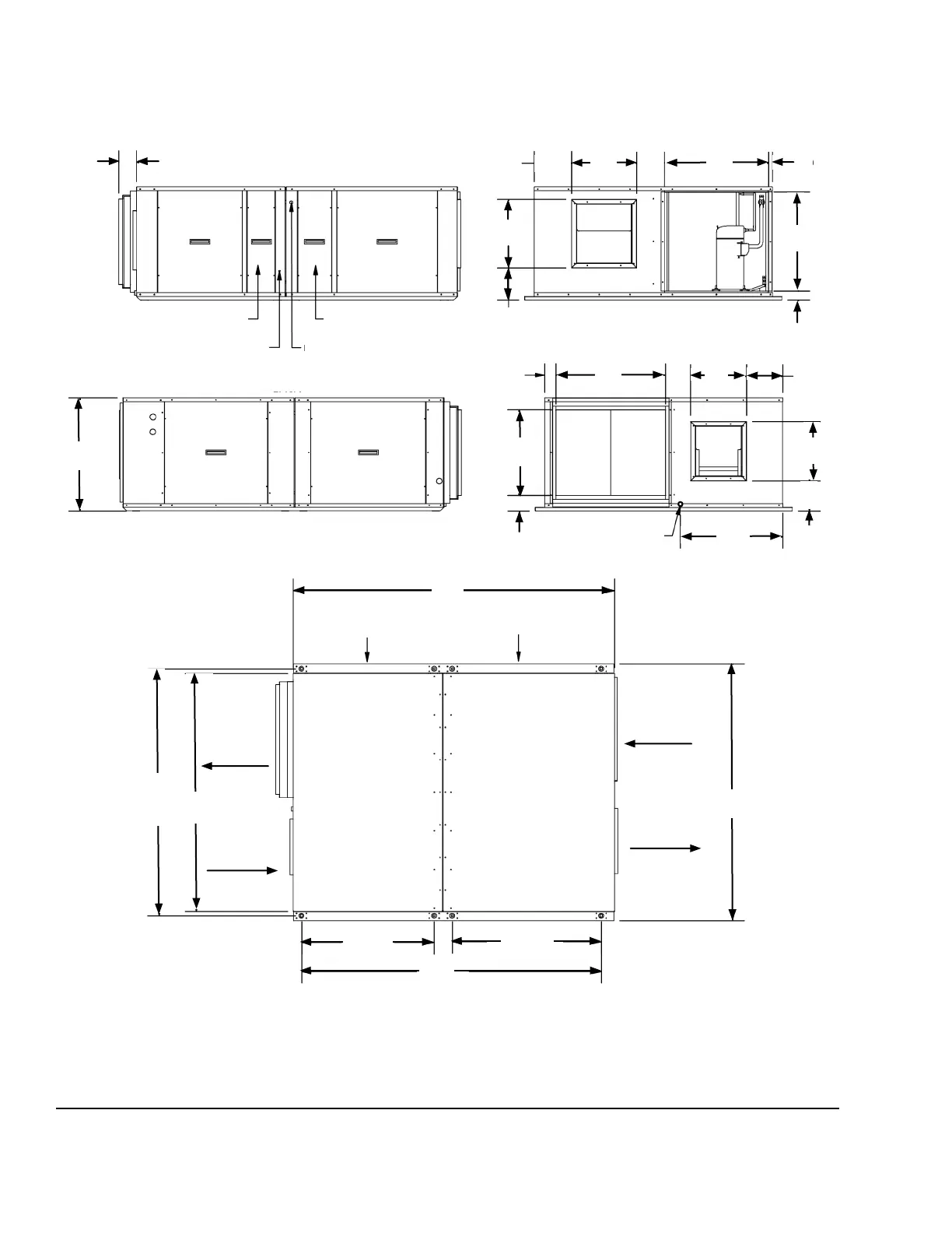
DIMENSIONAL DATA
NOTES:
1. Dimension tolerance is 1/16 inch
2. Evaporator and condenser duct connections cannot be altered unless noted.
LD27697
FIGURE 6 - DSH024C AND DSH036C DIMENSIONAL DATA: 2–3 TON HORIZONTAL A/C UNIT
14.00
6.57
Evaporator Section
Electrical Box Access
Condenser Section
Electrical Box Access
Low Voltage
Connection
Electrical Power
Connection
Front
Evaporator
Fan Access
Condenser
Fan Access
Condenser Openings
Evaporator
Fan Access
Condenser
Fan Access
Back
Evaporator
Openings
0.75-inch NPT
Drain Connection
Optional Condenser
Intake (Field Convertible)
Evaporator
Section
Condenser
Section
Optional Return Air (Field
Convertible)
Front
4.75
26.00
16.00
7.75
17.507.00
1.00
23.75
2.38
23.13
2.75
25.63
2.70
7.18
23.75
13.25
78.19
Condenser
Intake
Condenser
Discharge
61.00
Return Air
Supply Air
58.50 C.C.
56.00
71.88
29.00 C.C.
38.00 C.C.
30.50
Front

Table of Contents

Related product manuals