EasyManua.ls Logo

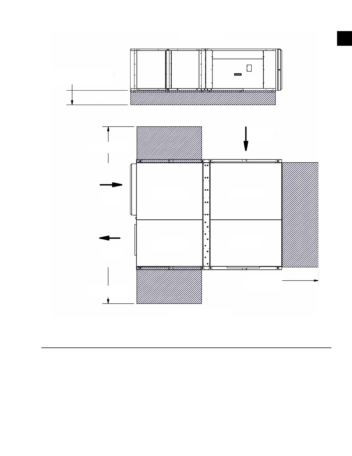
Johnson Controls DSH024C Series - FIGURE 11 - 8 and 10 Ton Horizontal A;C Unit Service Clearances

Johnson Controls DSH024C Series
52 pages
Print Icon
To Next Page IconTo Next Page
To Next Page IconTo Next Page
To Previous Page IconTo Previous Page
To Previous Page IconTo Previous Page
Loading...
21
SECTION 1 – INSTALLATION
FORM 145.32-IOM5
ISSUE DATE: 04/08/2019
1
NOTE:
8 Ton Packaged Unit Shown
LD27702
FIGURE 11 - 8 AND 10 TON HORIZONTAL A/C UNIT SERVICE CLEARANCES
Back View
Top View
36 Inch Minimum
Clearance
Evaporator
Section
Condenser
Section
Evaporator
Section
Condenser
Section
Top View
Return Air
Supply Air
36 Inch Minimum
Clearance
36 Inch Minimum
Clearance
4 Inch Minimum Clearance
(for Drain Tap)
Condenser
Intake

Table of Contents

Related product manuals