EasyManua.ls Logo

Johnson Controls DSH024C Series - FIGURE 9 - DSH120 C Dimensional Data: 10 Ton Horizontal A;C Unit

Johnson Controls DSH024C Series
52 pages
Print Icon
To Next Page IconTo Next Page
To Next Page IconTo Next Page
To Previous Page IconTo Previous Page
To Previous Page IconTo Previous Page
Loading...
19
SECTION 1 – INSTALLATION
FORM 145.32-IOM5
ISSUE DATE: 04/08/2019
1
NOTES:
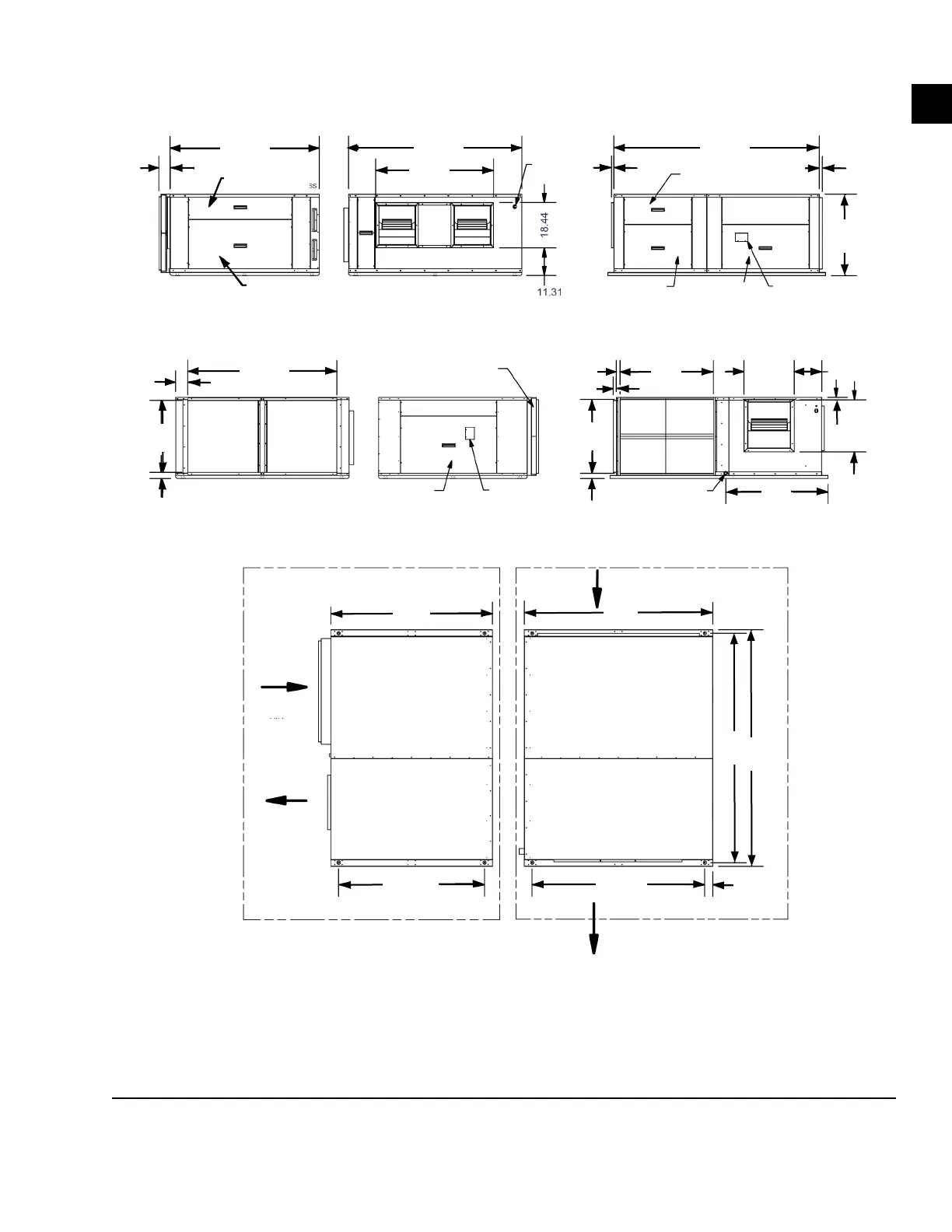
1. Dimension tolerance is 1/16 inch
2. Evaporator and condenser duct connections cannot be altered unless noted.
LD27700
FIGURE 9 - DSH120C DIMENSIONAL DATA: 10 TON HORIZONTAL A/C UNIT
41.79
55.00 C.C.
65.00 C.C.
60.88
70.88
2.94
11.26
20.521.58
1.25
33.25
1.25
1.08
21.27
89.10
86.50
0.75-inch NPT Drain
Connection
2.20
30.10
1
4.70
Evaporator Section
Electrical Box
Access
Front View
Right View
Back View
Left View
Top View
Evaporator Blower Drive
Access Panel
Condenser Discharge
Condenser Blower
Drive Access Panel
Condenser
Access Panel
Service Hose
Access
Compressor Section
Electrical Box Access
TX Valve and Filter
Drier Access Panel
Power
Connection
Evaporator Discharge
Evaporator Intake
Sight Glass
View Access
Condenser Intake
Filter Access
(Both Sides)
Evaporator
Section
Condenser
Section
Condenser
Intake
Condenser
Discharge
Return Air
Supply Air
84.00
70.88
60.88
61.00
38.10
48.20
4.94
2.50
29.35

Table of Contents

Related product manuals