EasyManua.ls Logo

Johnson Controls DSH024C Series - Page 49

Johnson Controls DSH024C Series
52 pages
Print Icon
To Next Page IconTo Next Page
To Next Page IconTo Next Page
To Previous Page IconTo Previous Page
To Previous Page IconTo Previous Page
Loading...
49
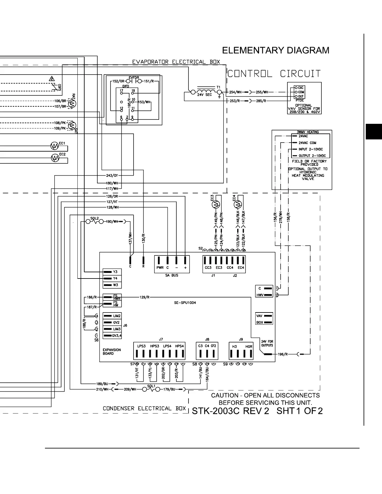
APPENDIX: WIRING DIAGRAMS
FORM 145.32-IOM5
ISSUE DATE: 04/08/2019
A
LD28621_b
FIGURE 24 - DSH0120C LOW VOLTAGE WIRING DIAGRAMS (CONT'D)

Table of Contents

Related product manuals