EasyManua.ls Logo

Johnston VT551 - Page 45

Johnston VT551
108 pages
Print Icon
To Next Page IconTo Next Page
To Next Page IconTo Next Page
To Previous Page IconTo Previous Page
To Previous Page IconTo Previous Page
Loading...
Page Issue 02
Chapter - Electrical System
9:19
VT551 - Maintenance
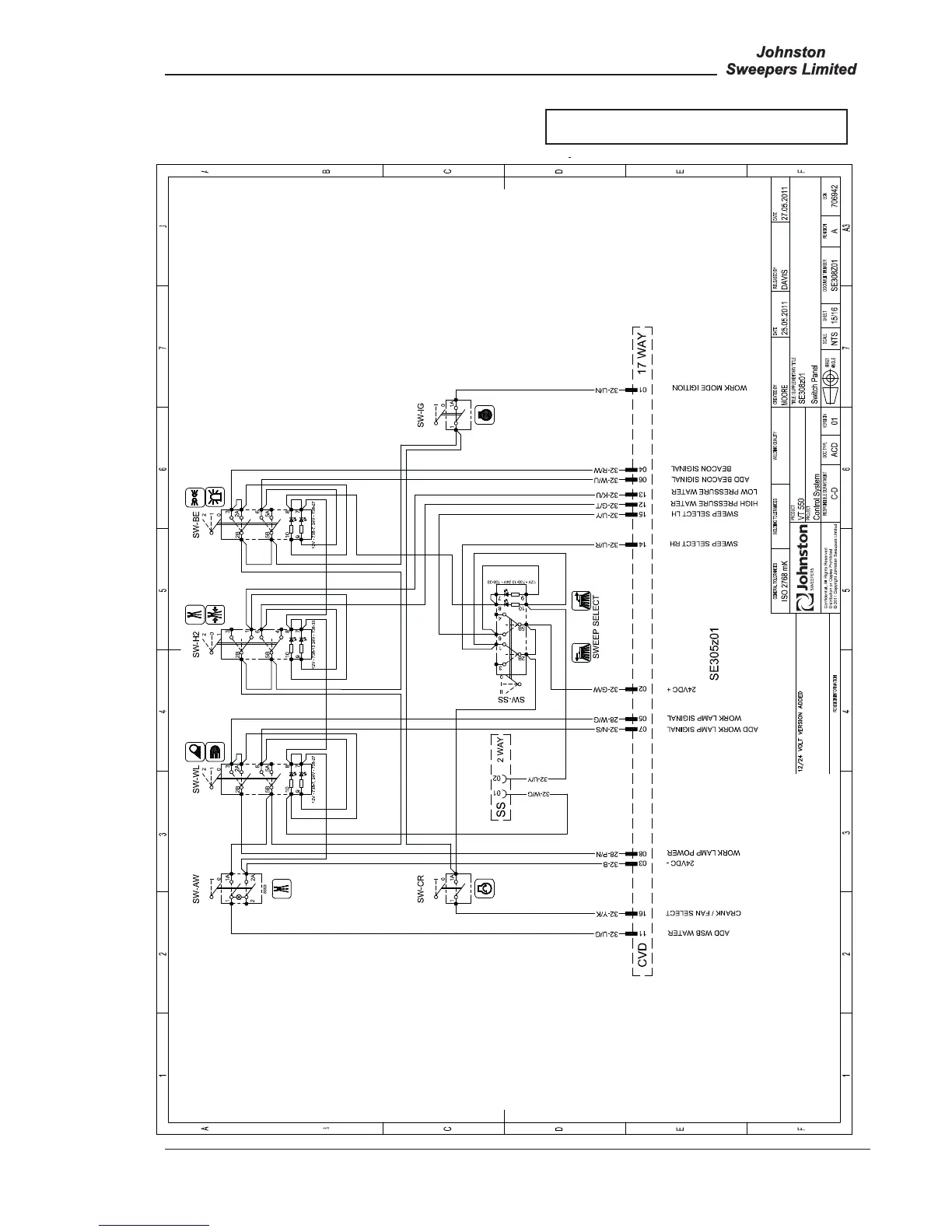
Switch Panel Diagram - SE308z01
All Copyright and rights are the property of Johnston Sweepers Ltd

Table of Contents

Related product manuals