EasyManua.ls Logo

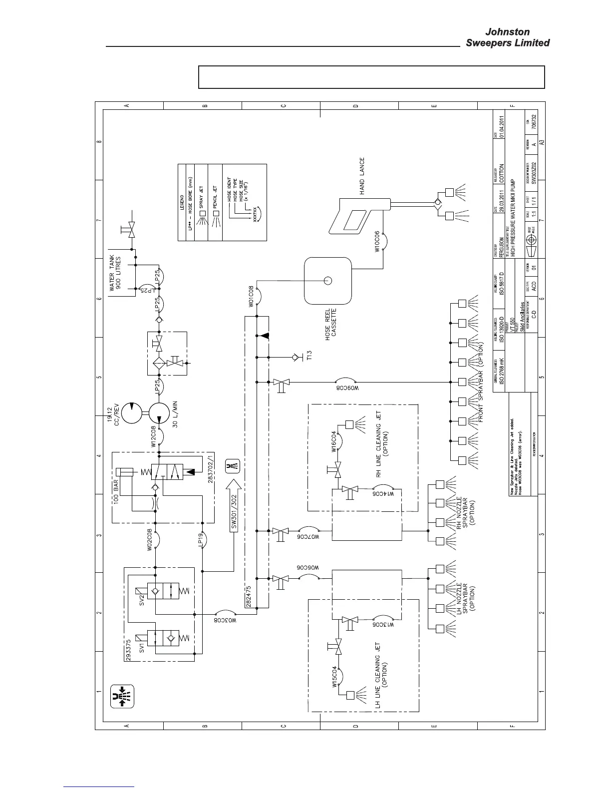
Johnston VT551 - Water System Low Pressure Dual Sweep - Diagram Sw302 A01

Johnston VT551
108 pages
Print Icon
To Next Page IconTo Next Page
To Next Page IconTo Next Page
To Previous Page IconTo Previous Page
To Previous Page IconTo Previous Page
Loading...
Page Issue 01
Chapter - Water System
10:7
VT551 - Maintenance
Water System Low Pressure Dual Sweep - Diagram SW302a01
All Copyright and rights are the property of Johnston Sweepers Ltd

Table of Contents

Related product manuals