EasyManua.ls Logo

JRC JMA-9172-SA - Jma-9172-Sa

JRC JMA-9172-SA
486 pages
To Next Page IconTo Next Page
To Next Page IconTo Next Page
To Previous Page IconTo Previous Page
To Previous Page IconTo Previous Page
Loading...
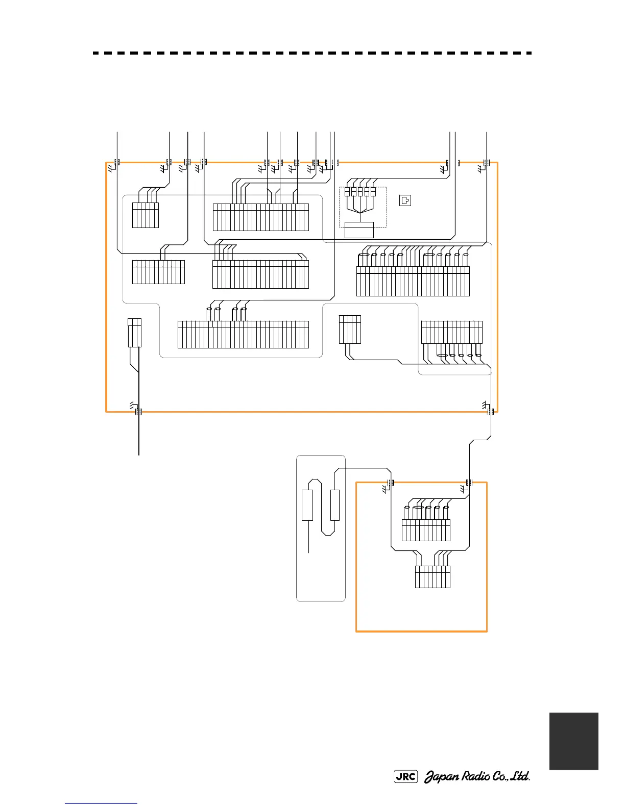
JMA-9172-SA Instruction Manual > B.DRAWINGS > B.7 Terminal Board Connection Diagram
B17
B
B.7.1 JMA-9172-SA
Fig B-13: Terminal Board Connection Diagram of JMA-9172-SA
1 VD+
2 VD-
3 TRIG+
4 TRIG-
5 BP+
6 BP-
7 BZ+
8 BZ-
9 MTR+
10 MTR-
11 MTRE
12 (NC)
13 +48V
14 +48VG
TB4101(ANT)
1 NAV1TX+
2 NAV1TX-
3 NAV1RX+
4 NAV1RX-
5 NAV2TX+
6 NAV2TX-
7 NAV2RX+
8 NAV2RX-
9 LOGRX+
10 LOGRX-
11 ALMTX+
12 ALMTX-
13 ALMRX+
14 ALMRX-
15 ARPATX+
16 ARPATX-
17 JARPATX+
18 JARPATX-
19 NSKTX+
20 NSKTX-
21 HDGRX+
22 HDGRX-
TB4501(OPTION)
1 ARPAALM+
2 ARPAALM-
3 SYSALM+
4 SYSALM+
5 PWRALM+
6 PWRALM-
7 ARPAACK+
8 ARPAACK-
9 SYSACK+
10 SYSACK-
11 PWRACK+
12 PWRACK-
13 EXEVT+
14 EXEVT-
15 AISTX+
16 AISTX-
17 AIS_TG
18 AISRX+
19 AISRX-
20 AIS_RG
21 MNTTX+
22 MNTTX-
TB4601(ALARM) TB4401(EXT RADAR)
1 RBVD
2 RBVDE
3 ETIY3
4 ETIY3E
5 SVD1
6 SVD1E
7 ETIY1
8 ETIY1E
9
EXφA1
10
EXφA1E
11
EXφB1
12
EXφB1E
13
EXφZ1
14
EXφZ1E
15
16
17
18
19
20
21
22
23
24
25 (NC)
26 (NC)
27 ACKOUT+
28 ACKOUT-
29 WMRST+
30 WMRST-
SVD2
SVD2E
ETIY2
ETIY2E
EXφA2
EXφA2E
EXφB2
EXφB2E
EXφZ2
EXφZ2E
1 (NC)
2
3
4
5 P1+
6 P1-
7
8
9 S1+
10 S2-
11
12
TB4801(LOG)
(NC)
(NC)
(NC)
(NC)
(NC)
(NC)
(NC)
U
W
V
FILTER ACIN
CDC-1362
J4409(DSUB-15P)
R
CQD-1891
(JRC SUPPLY)
G
B
H
V
RED
GRN
BLU
GRY
BLK
1 1/R1
2 2/S1
3 3/S2
4 S3
5 5/R2
6 (NC)
TB4701(GYRO)
SCANNER UNIT
NKE-1532-1/2
DISPLAY UNIT NCD-9170
BLU
1
YEL
GRN
WHT-BLU
WHT-WHT
ORG
BLK
PNK
BRN
2
RED
PUR
WHT-YEL
WHT-WHT
H-2695111153
(JRC SUPPLY)
1 VDIN1
2 VDIN1E
3 TRIGIN1
4 TRIGIN1E
5 BPIN1
6 BPIN1E
7 BZIN1
8 BZIN1E
9 MTRIN1+
10 MTRIN1-
11 MTRIN1E
12 PWRIN1
13 PWRIN1E
14 PWROUT1
15 PWROUT1E
16 VDOUT1
17 VDOUT1E
18 TRIGOUT1
19 TRIGOUT1E
20 BPOUT1
21 BPOUT1E
22 BZOUT1
23 BZOUT1E
24 MTROUT1+
25 MTROUT1-
26 MTROUT1E
TB4201(ISW IN/OUT)
RADAR
(INTERSWITCH)
WHT
RED
WHT
BLK
ECDIS
H-2695110006
(JRC SUPPLY)
250V-TTYCS-1
250V-TTYCS-1
CONNING
DISPLAY
VDR
3C-2V x5 (MAX 30m)
250V-TTYCS-1
250V-TTYCS-1
250V-TTYCS-1
250V-TTYCS-1
DGPS
ECHO
SOUNDER
LOG
(NMEA0183)
250V-TTYCS-4
AIS
0.6/1kV-DPYCYS-1.5
250V-MPYCYS-7
GYRO
LOG
(200P/NM)
0.6/1kV-DPYCYS-1.5
ALARM MONITORING
SYSTEM
(NEAREST APPROACH)
RED
BLU
3
ORN
WHT
0.6/1kV-DPYCY-6
SHIPS MAINS
AC100-115V/AC220-240V 50/60Hz 1φ
(S-BAND 300W RADAR)
JMA-9172-SA レーダー 盤間接続図
INTERCONNECTION DIAGRAM OF RADAR TYPE JMA-9172-SA
WHT
BLK
19-CORES COMPOSITE CABLE (JRC SUPPLY)
H-2695110056
CQD-2176 TERMINAL BOARD
1
2
4
YEL
GRN
1
VD+
2
VD-
3
TRIG+
4
TRIG-
5
BP+
6
BP-
7
BZ+
8
BZ-
9
MTR+
10
MTR-
11
MTRE
TB101
1
2
3
V14
W15
+48V
6
+48VG
U1
TB102
ORN
WHT
1
2
4
3
GRN
YEL
BLU
RED
CIRCUIT BREAKER
5A
(SHIP YARD SUPPLY)
0.6/1kV-DPYCYS-1.5
AC100V,1φ,100W
NBL-175
STEP-DOWN
TRANSFORMER
0.6/1kV-DPYCYS-1.5
0.6/1kV-DPYCYS-1.5
SHIPS MAINS
AC220V, 1φ,for HEATER
D HEATER OPTION
UTH
7
8
U
V
J4407
RJ-45 LAN
U
V
W
CBD-1861 ACOUT1
BATT IN -
BATT IN +

Table of Contents

Related product manuals