EasyManua.ls Logo

JRC JSS-2150 - 3 Appendix; Block Diagram; Ntd-2150 Mf;Hf Transceiver

JRC JSS-2150
114 pages
To Next Page IconTo Next Page
To Next Page IconTo Next Page
To Previous Page IconTo Previous Page
To Previous Page IconTo Previous Page
Loading...
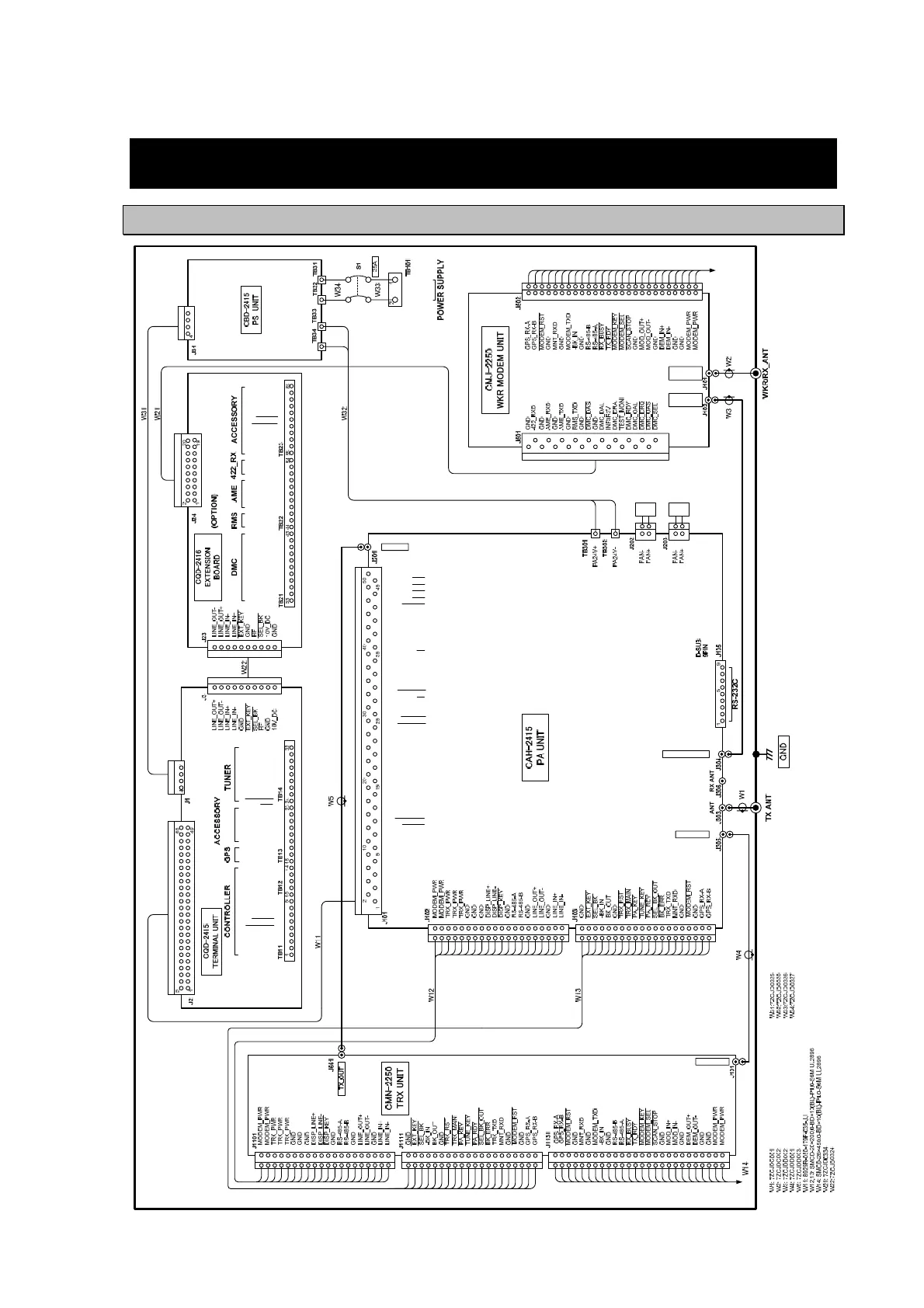
APPENDIX
3-1
3. APPENDIX
3.1 Block diagram
3.1.1 NTD-2150 MF/HF TRANSCEIVER
WKR_RX
_ANT
DISP_PWR
GND
GND
RX_IN
WKR_RX
_OUT
RS-485-A
RS-485-B
GND
DISP_LINE+
DISP_LINE-
DISP_KEY
SYS_RST
NC
NC
DC24V+ IN
DISP_PWR
DC24V- IN
RX_OUT
RXD
TXD
DTR
GND
DSR
RTS
CTS
NC
NC
RS-485-A
RS-485-B
GND
DISP_LINE-
DISP_LINE+
ATU_TXD
PA_MUTE
ANT_CURR
ATU_RXD
GND
GND
GND
GPS_RX-B
GPS_RX-A
24V_DC
RBK
GND
GND
BK_OUT
-BK_IN
LINE_OUT+
LINE_OUT-
LINE_IN+
LINE_IN-
GND
DC
HF
ATU_TXD
PA_MUTE
ANT_CURR
ATU_24V
ATU_RXD
GND
GPS_RX-B
GPS_RX-A
+BK
-BK
RBK
GND
GND
GND
B1
12
GND
GND
EXT_KEY
SEL_BK
RBK
RBK
GND
GND
To WKR MOMEM UINT
2025 10 115 5
RF_IN
WKR_RX_IN
DC_OPE+
DC_OPE-
GND
GND
10 115 5
20
DISP_KEY
GND
10 115 5
20
101 155
20
101 155
2020 25101 155
SEL_BK
1
DMC_SEL
DMC_DRQ
DMC_PWR
DMC_RDY
DMC_DRA
DMC_DAL
GND
DMC_DAS
DMC_OAL
DMC_OAS
422_RX-A
AME_RX-A
AME_TX-A
AME_RX-B
AME_TX-B
GND
RMS_TX-A
RMS_TX-B
422_RX-B
GND
GND
GND
LINE_OUT+
LINE_OUT-
LINE_IN+
LINE_IN-
GND
EXT_KEY
R_CONT+
R_CONT-
GND
1 10
B2
12
1
2
9
10
19
20
24V_DC
PA_PWR
PA_PWR
GND
To TRX UNIT
TRX_PWR
TRX_PWR
TRX_PWR
TRX_PWR
MODMEM_PWR
MODMEM_PWR
MODMEM_PWR
NC
SYS_RST
RBK
GND
10V_DC
GND
24V_DC
PA24V-
PA24V+
24V+
24v-
10
BK_ERR

Table of Contents

Other manuals for JRC JSS-2150

Related product manuals