EasyManua.ls Logo

KAESER CSD 75 - Identification of the Components; Pipe and Instrument Flow Diagram (P & I Diagram)

KAESER CSD 75
81 pages
Print Icon
To Next Page IconTo Next Page
To Next Page IconTo Next Page
To Previous Page IconTo Previous Page
To Previous Page IconTo Previous Page
Loading...
Construction and Operation
5 --- 13
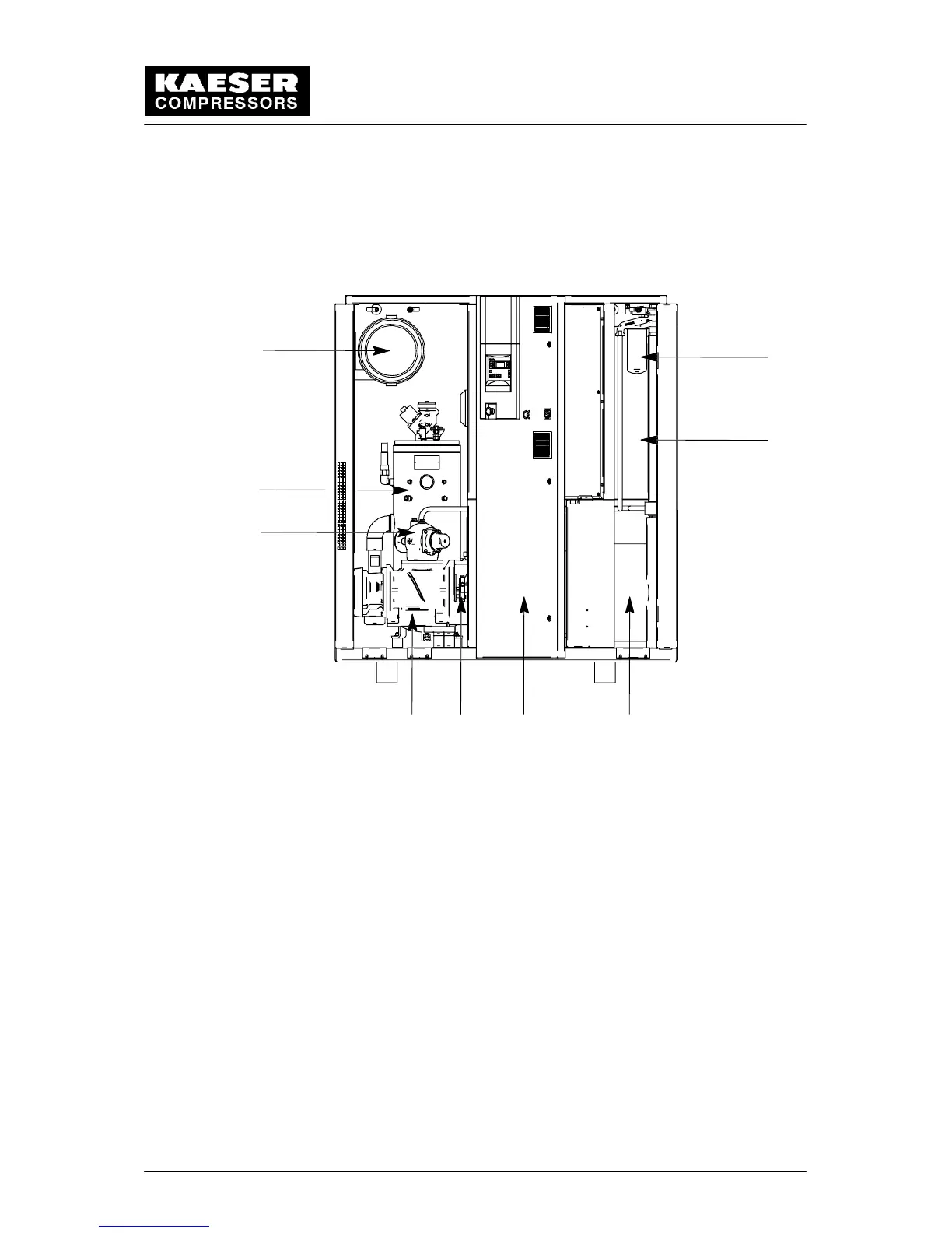
5.3 Identification of the Components
Position details in ( ) correspond with the Pipe and Instrument Flow Diagram
(P & I Diagram)
52 6 3
8
7
1
4
9
1 Inlet valve (2) 6 Control cabinet
2 Coupling (53) 7 Oil separator tank
3 Drive motor (3) 8 Air filter (1)
4 Oil filter (10) 9 Oil/air aftercooler (11/13)
5 Airend (4)
5.4 Pipe and Instrument Flow Diagram (P & I Diagram)
(see following pages)

Table of Contents

Related product manuals