EasyManua.ls Logo

KAESER CSD 75 - Installation Requirements

KAESER CSD 75
81 pages
Print Icon
To Next Page IconTo Next Page
To Next Page IconTo Next Page
To Previous Page IconTo Previous Page
To Previous Page IconTo Previous Page
Loading...
Installation
6 --- 19
6 Installation
6.1 Installation Requirements
The compressor should be mounted on level surface.
For any special application please consult with the manufacturer.
Safe operation of the compressor package is only ensured if the ambient temperature re-
mains within the limits stated in chapter 1.6).
If the compressor is used in the open, take care that it is protected against the direct rays
of the sun and against the ingress of dust and rain.
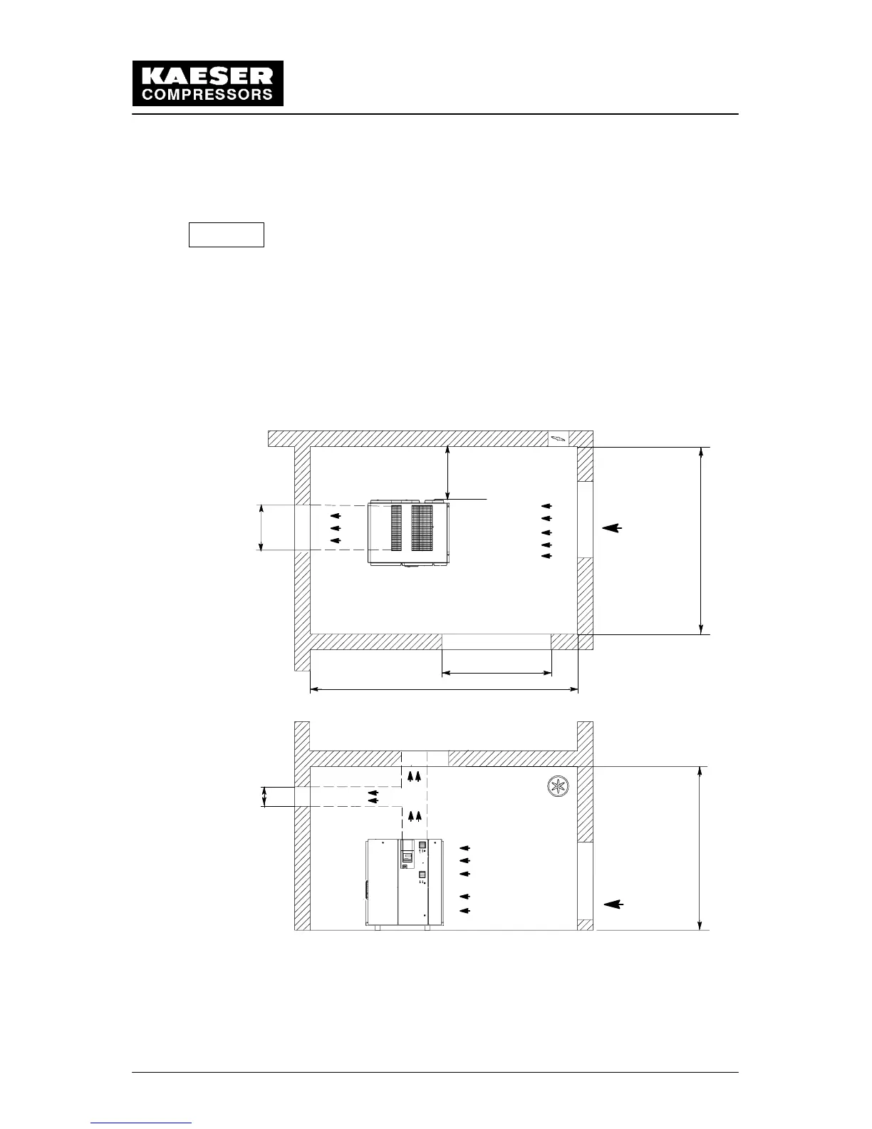
Install the compressor according to the following diagram. Adhere to the minimum dis-
tances shown to allow free access to the compressor package.
Adequate ventilation of the compressor space is ensured only if the minimum values (see
chapter 1.6) are adhered to.
A
min. 140
h
B
B
A
min. 160
80
B
min. 200
b
40
Exhaust ventilator
Exhaust
channel
Air inlet
opening
Exhaust
channel
Measurements in inches
Solution A: Forced Ventilation
The ventilator intended for the compressor room must provide adequate ventilation in rela-
tion to the size of the compressor package (see chapter 1.6).
Attention!

Table of Contents

Related product manuals