EasyManua.ls Logo

KitchenAid KGRT607 - Wiring Diagrams and Strip Circuits; Wiring Diagram Overview

KitchenAid KGRT607
80 pages
Print Icon
To Next Page IconTo Next Page
To Next Page IconTo Next Page
To Previous Page IconTo Previous Page
To Previous Page IconTo Previous Page
Loading...
7-1
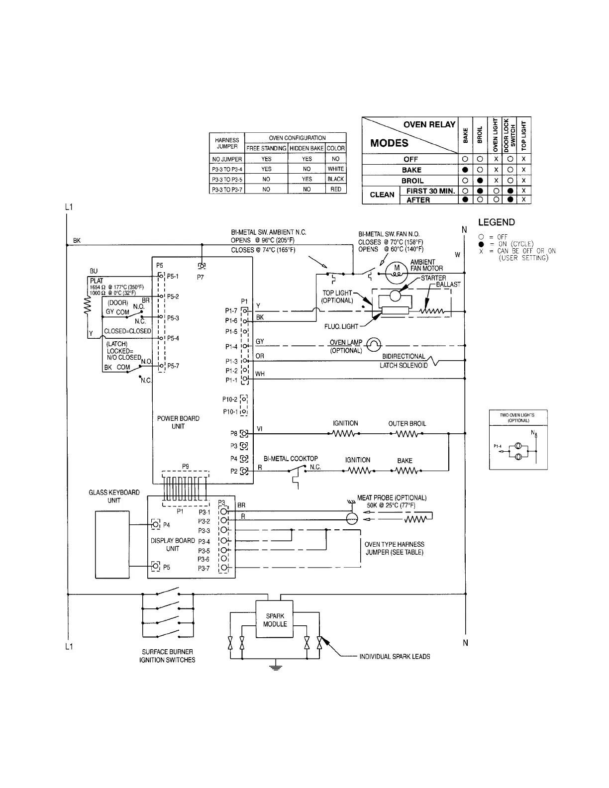
WIRING DIAGRAM & STRIP CIRCUITS
WIRING DIAGRAM

Table of Contents

Other manuals for KitchenAid KGRT607

Related product manuals