EasyManua.ls Logo

Kohler KBS - External Battery Supply Module (EBSM)

Kohler KBS
80 pages
Print Icon
To Next Page IconTo Next Page
To Next Page IconTo Next Page
To Previous Page IconTo Previous Page
To Previous Page IconTo Previous Page
Loading...
TP-6835 9/17 37Section 4 Communication and Accessory Connections
Use 14-24 AWG cable to connect to inputs and outputs.
See Figure 4-14.
LEDs on the module circuit board light to indicate that
each input or output is active.
Note: Each I/O module must have unique address.
Use the address DIP switches on the I/O module to
assign a unique (different) address to each module a s
shown in Figure 4-15. Assign addresses in order from 1
to 4. An LED for each DIP switch lights to indicate that
the switch is closed.
The alarm module’s fixed address is 5. The battery
module’s fixed address is 6.
See the controller operation manual for instructions to
assign functions to each input and output. Inputs and
outputs can also be assigned using a personal
computer with Kohlerr SiteTecht software or over
Modbus. See TP-6701, SiteTech Operation Manual, or
TP-6113, Modbus Protocol Manual.
refGM41093
INPUT 1
INPUT 2
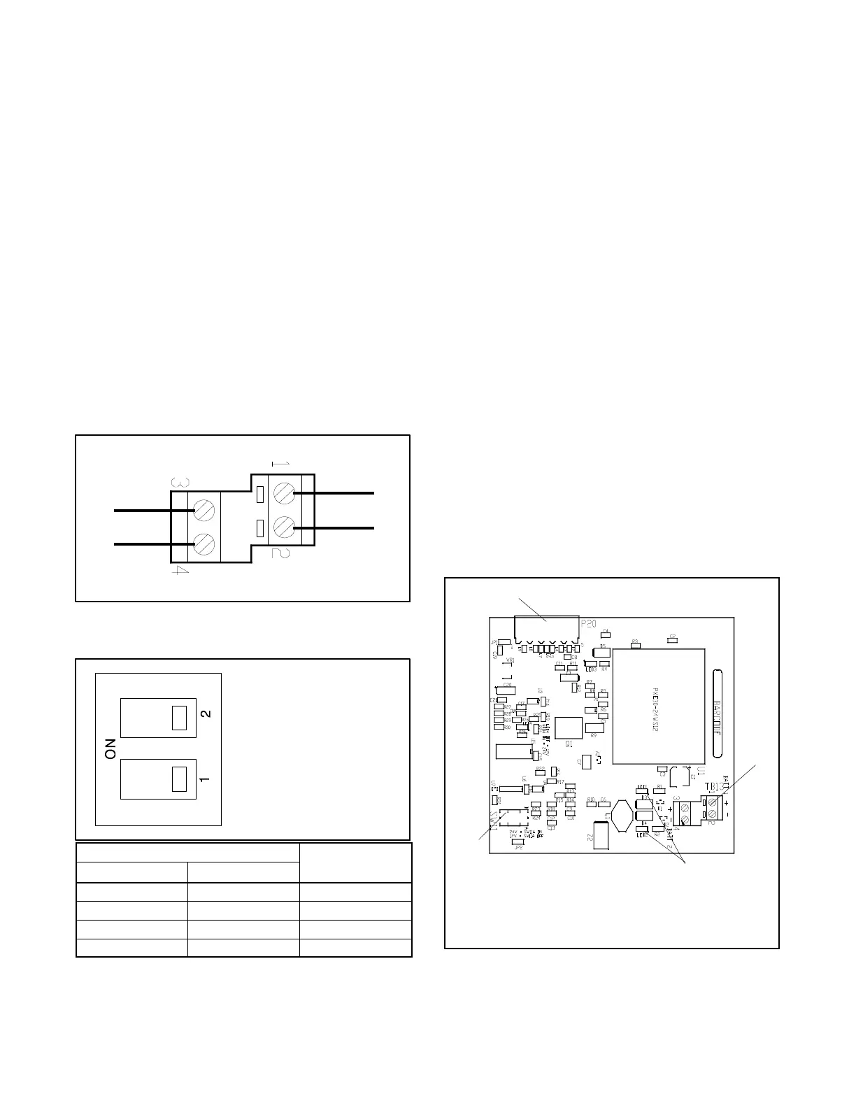
Figure 4-14 I/O Module Input Connections
(TB1 or TB10)
Both switches OFF
Address=1 shown
DIP Switch
Address
1 2
Off Off 1
On Off 2
Off On 3
On On 4
Figure 4-15 Address DIP Switch Settings
4.3.3 External Battery Supply Module
(EBSM)
The external battery supply module kit allows
connection to the generator set engine start battery(ies)
or other batteries to provide 12 VDC power to the ATS
controller. The external battery supply module kit is
required for the following applications:
D Systems using extended engine start time
delays. The EBSM provides power to the ATS
controller during extended time delays longer than 15
seconds, when neither the Normal nor the
Emergency source is available.
D Installations with frequent utility power outages.
The EBSM provides power to the ATS controller when
neither source is available, preserving the controller’s
backup battery.
D Three-source systems. Three-source systems use
two transfer switches and two standby power sources
in addition to the preferred power source. The EBSM
provides power to the second ATS controller when
the preferred source (connected to ATS1) is
supplying the load. See Section 3.1 for instructions to
set up a three-source system.
The external battery supply module kit includes one
external battery supply circuit board and the circuit
board mounting components. See Figure 4-16.
GM42227-A
1. Connector P20
2. LED indicators
3. Battery input connection terminal block TB13
4. 12/24 volt DIP switch SW11-1. OFF=12 VDC, ON = 24 VDC
1
3
2
4
Figure 4-16 External Battery Supply Module

Table of Contents

Related product manuals