EasyManua.ls Logo

Leakwise SLC-220 - Page 90

Default Icon
92 pages
Print Icon
To Next Page IconTo Next Page
To Next Page IconTo Next Page
To Previous Page IconTo Previous Page
To Previous Page IconTo Previous Page
Loading...
5
5
4
4
3
3
2
2
1
1
D D
C C
B B
A A
Title
Size Document Number R e v
Date: Sheet of
DWGW SLC 003 5 0
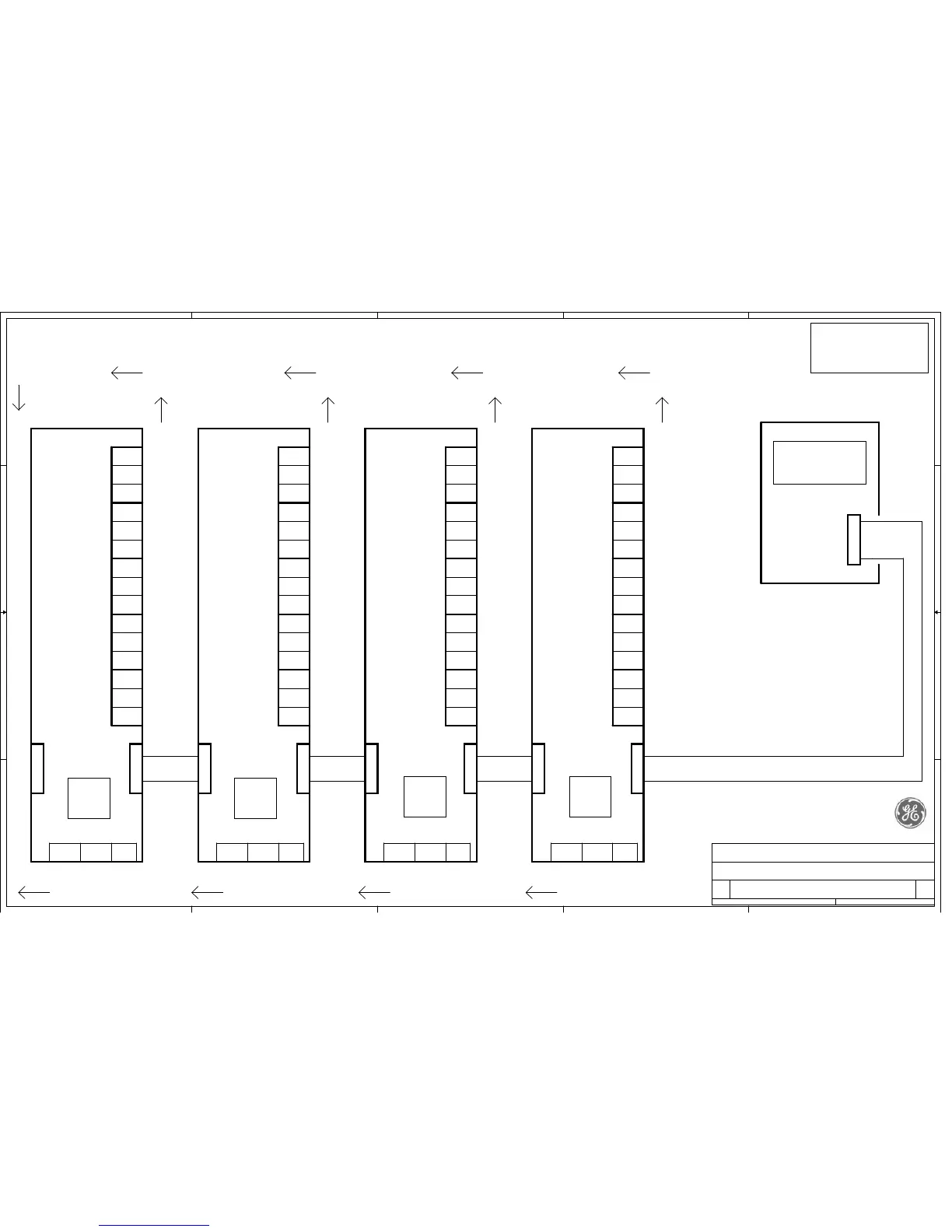
SLC-220 Wiring Diagram - Outputs Boards Connection
B
2 2Sunday, April 12, 2015
GE Analytical Instruments
SLC-220
Main Board
DWG SLC 001 4
J6
OUTPUTS
/14 Flat Cable
NO
COM
NC
NO
COM
NC
NO
COM
NC
NO
COM
NC
NO
COM
NC
TB14
TB15
TB16
TB17
TB18
Relay #1
/ Water
Relay #2
/ Oil
Relay #3
/ High Oil
Relay #4
/ Air
Relay #5
/ Fail
OUTPUTS Board #1
DWG SLC 002 4
J11J12
OUTPUT
INPUT
GNDIoutVout
TB19: Analog Output
1
NO
COM
NC
NO
COM
NC
NO
COM
NC
NO
COM
NC
NO
COM
NC
TB14
TB15
TB16
TB17
TB18
OUTPUTS Board #2
DWG SLC 002 4
J11J12
OUTPUT
INPUT
GNDIoutVout1
NO
COM
NC
NO
COM
NC
NO
COM
NC
NO
COM
NC
NO
COM
NC
TB14
TB15
TB16
TB17
TB18
OUTPUTS Board #3
DWG SLC 002 4
J11J12
OUTPUT
INPUT
GNDIoutVout1
NO
COM
NC
NO
COM
NC
NO
COM
NC
NO
COM
NC
NO
COM
NC
TB14
TB15
TB16
TB17
TB18
OUTPUTS Board #4
DWG SLC 002 4
J11J12
OUTPUT
INPUT
GNDIoutVout1
/14 Flat
Cable
0-5V 4-20mA GND0-5V 4-20mA GND0-5V 4-20mA GND0-5V 4-20mA GND
TB19: Analog OutputTB19: Analog OutputTB19: Analog Output
Relays Contacts Wiring
Analog Outputs Wiring
NO: Normally Opened
NC: Normally Closed
COM: Common Point
Relays Contacts:
24 VDC is Supplied to Outputs Boards
from Main Board thru the Flat Cable
/14 Flat
Cable
/14 Flat
Cable
/14 Flat
Cable
JP4: OFF
JP3: OFF
JP2: OFF
JP1: 0N
JP4: ON
JP3: OFF
JP2: OFF
JP1: 0FF
JP4: OFF
JP3: OFF
JP2: ON
JP1: 0FF
JP4: OFF
JP3: ON
JP2: OFF
JP1: 0FF

Related product manuals