EasyManua.ls Logo

Leakwise SLC-220 - Page 89

Default Icon
92 pages
Print Icon
To Next Page IconTo Next Page
To Next Page IconTo Next Page
To Previous Page IconTo Previous Page
To Previous Page IconTo Previous Page
Loading...
5
5
4
4
3
3
2
2
1
1
D D
C C
B B
A A
Title
Size Document Number R e v
Date: Sheet of
DWGW SLC 003 5 0
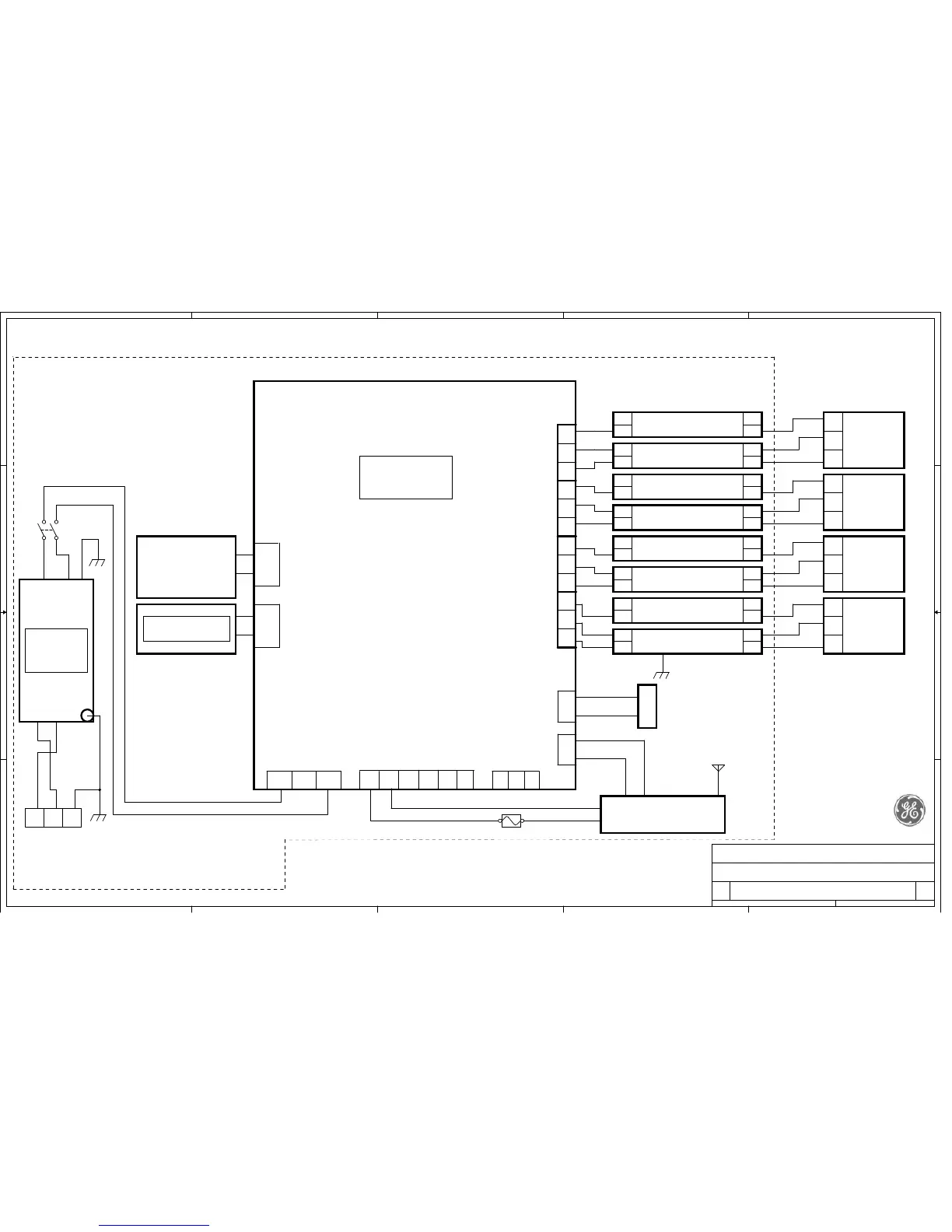
SLC-220 115-230VAC Wiring Diagram - Sensors Connection
B
1 2Sunday, April 12, 2015
GE Analytical Instruments
1
2
3
4
MTL 7715+
1
2
3
4
MTL 7710+
+
-
S
Sensor #4
Zener Safety Barriers
(Optional)
Installed on isolated DIN rail
Sensors in
Hazardous
Area
Power Input
Terminal
J1
Power
Supply:
TDK
MWS65-12
L N FG
SLC-220
Main Board
DWG SLC 001 4
+
-
S
+
-
S
+
-
S
+
-
S
Sensors
Inputs
Sensor #2
Sensor #3
Sensor #4
TB10
J9
RS-232
for PC
J2
1
12
1 2 3
LN
CN51-3
Safety Ground
(outside enclosure)
+12V
GND
Note:
Disconnect AC power input before servicing the unit.
The ON/OFF switch is only for easier operation.
SLC-220 Enclosure
J7
RS-232:
GSM
MODEM
Optional GSM MODEM
Sierra GL6100
Sensor #1
RS-232 Cable
RED
BLACK
BLUE
GND
TB3:
POWER IN
1
TB5:
1
+
MODEM
PWR
-
EXT.
PWR 1
BUZZER
+ -
RED
BLACK
LIGHTS
DISPLAY
CN1-2
CN1-1
GND
CN51-2
+12V
GND
12V
RED
BLACK
ON/OFF
RED
BLACK
Protective Earth
(Frame Ground)
CN51-4
GND
+
EXT.
PWR 2
TB6:
PC Connector
(Female D-Sub 9)
Flat Cable
1
+- -
!
LIGHTS BOARD
DWG S SLC 0031
DISPLAY BOARD:
DWG S SLC 0092
+ LCD:
EAeDIPTFT43-ATP
OPTIONAL
115/230 VAC
1
2
3
4
MTL 7715+
1
2
3
4
MTL 7710+
+
-
S
Sensor #1
1
2
3
4
MTL 7715+
1
2
3
4
MTL 7710+
+
-
S
Sensor #2
1
2
3
4
MTL 7715+
1
2
3
4
MTL 7710+
+
-
S
Sensor #3
Inline Fuse Holder - 800mA Fast
Quad Band Antenna

Related product manuals