EasyManua.ls Logo

Lenovo ThinkSystem ST50 V2 - Cable Routing for Optical Disk Drive

Lenovo ThinkSystem ST50 V2
122 pages
To Next Page IconTo Next Page
To Next Page IconTo Next Page
To Previous Page IconTo Previous Page
To Previous Page IconTo Previous Page
Loading...
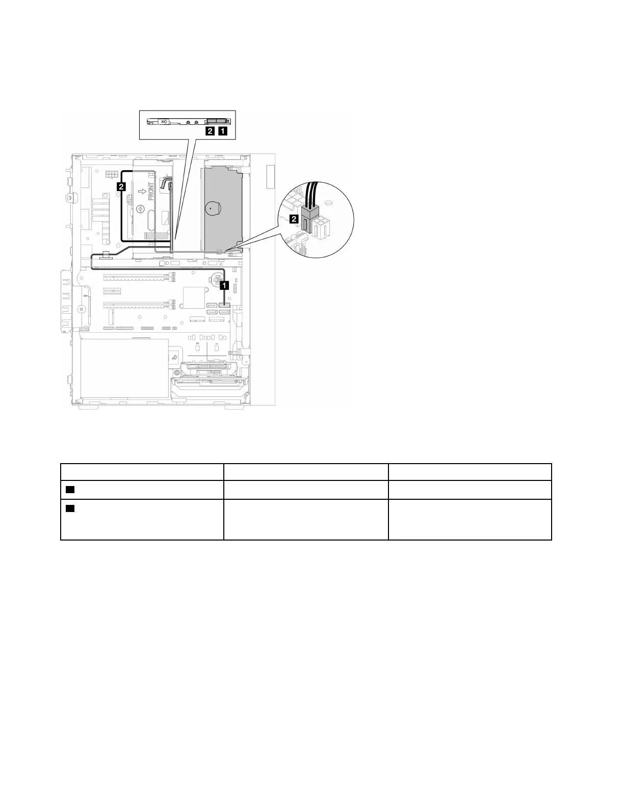
Cable routing for optical disk drive
Read this section to learn about cable routing for the optical disk drive.
Figure 16. Cable routing for optical disk drive
Table 14. Cable routing for optical disk drive
Cable From To
1 SATA cable 1 latch (520 mm) Optical disk drive signal connector
SATA 4 connector
2 Slim ODD, second 3.5-inch drive
and 2.5-inch drive power cable ( 300
mm + 210 mm + 110 mm)
Optical disk drive power connector SATA power 1 connector
Make sure to follow the “Cable routing guidelines” in “Internal cable routing” on page 19.
For the system-board connector locations, see “System board components” on page 18.
24
ThinkSystem ST50 V2 Setup Guide

Table of Contents

Other manuals for Lenovo ThinkSystem ST50 V2

Related product manuals