EasyManua.ls Logo

Lenovo ThinkSystem ST50 V2 - Cable Routing for the Thermal Sensor

Lenovo ThinkSystem ST50 V2
122 pages
To Next Page IconTo Next Page
To Next Page IconTo Next Page
To Previous Page IconTo Previous Page
To Previous Page IconTo Previous Page
Loading...
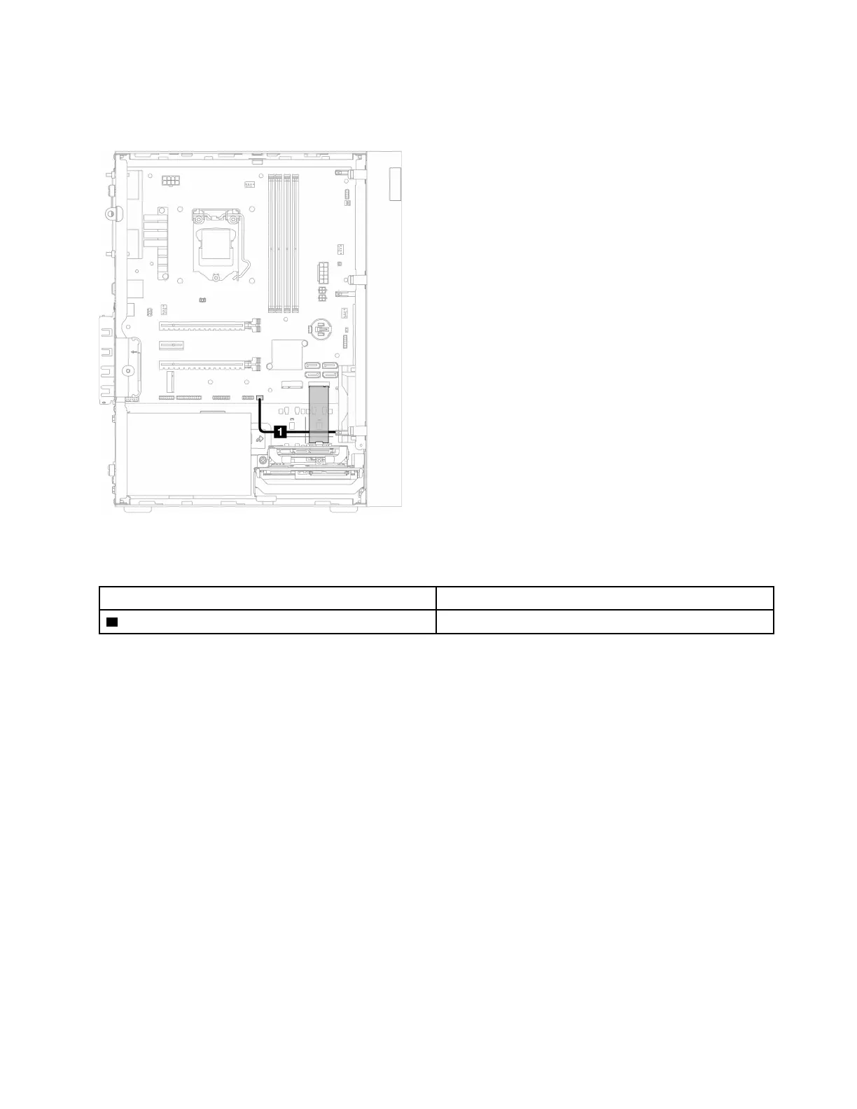
Cable routing for the thermal sensor
Read this section to learn about cable routing for the thermal sensor.
Figure 25. Cable routing for the thermal sensor
Table 22. Cable routing for the thermal sensor
From To
1 Thermal sensor cable
Thermal sensor connector
Note: If applicable, place the thermal sensor cable under the M.2 drive.
Make sure to follow the “Cable routing guidelines” in “Internal cable routing” on page 19.
For the system-board connector locations, see “System board components” on page 18.
Chapter 2. Server components 33

Table of Contents

Other manuals for Lenovo ThinkSystem ST50 V2

Related product manuals