EasyManua.ls Logo

Liebert NXC 40kVA - Replacement of Fuse; Maintenance of UPS and Options

Liebert NXC 40kVA
96 pages
Print Icon
To Next Page IconTo Next Page
To Next Page IconTo Next Page
To Previous Page IconTo Previous Page
To Previous Page IconTo Previous Page
Loading...
80 Chapter 10 Service And Maintenance
Liebert NXC 30kVA And 40kVA UPS User Manual
5. Tighten the fixing screws of the fixing bar on the other side.
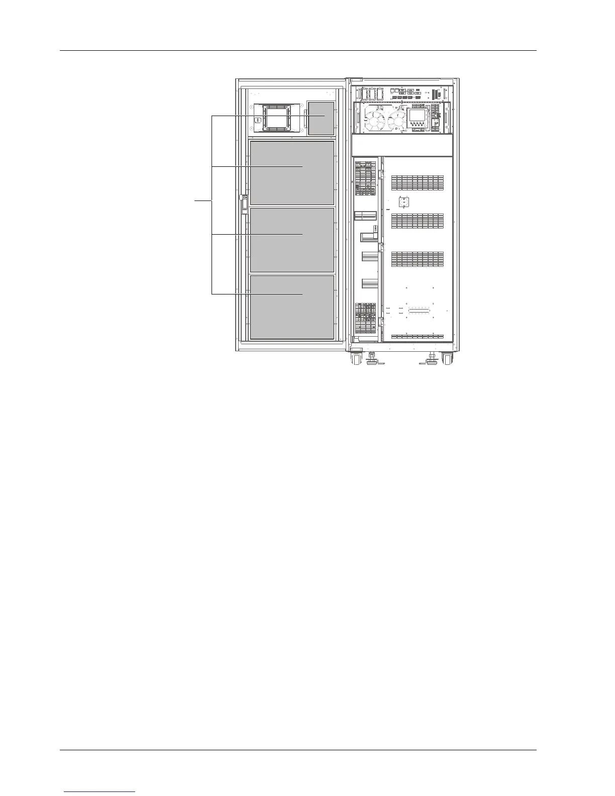
Figure 10-1 Replacing air filter
10.2.3 Replacement Of Fuse
When replacing the fuses on copper bars of the battery input terminals, use fuses of the same model as the original
ones. Note that the AC fuses and DC fuses in the system are not interchangeable.
10.3 Maintenance Of UPS And Options
UPS and the options need common maintenance:
1. Keep good history record. Keeping good history record facilitates failure treatment.
2. Keep clean, so as to prevent UPS from the invasion of dust and moisture.
3. Maintain appropriate ambient temperature. The most appropriate temperature for battery is 2C to 25°C. Too low
temperature will reduce the battery capacity and too high temperature will reduce the battery life.
4. Check the wiring. Check the tightening of all connected screws, and there should be routine tightening at least once
a year.
5. Check regularly if there is any abnormity in the superior or subordinate switch to ensure cutting off the import or
export when the current is too large. Maintenance staff should be familiar with the typical ambient conditions where
UPS is working in order to rapidly position which ambient conditions are unusual; the setting of UPS operation control
panel should be known as well.
For information of the UPS battery maintenance, refer to 6.11 Battery Maintenance.
Air filter

Table of Contents

Related product manuals